Warehouse design with parking details dwg autocad drawing .
Description
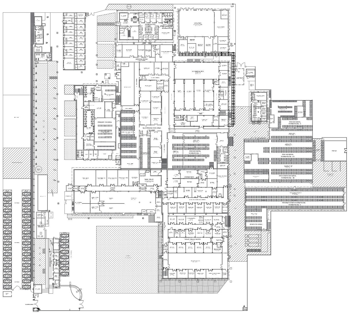
Discover our comprehensive DWG Autocad drawing detailing a warehouse design with meticulous parking details. This drawing incorporates essential elements such as plot detail, furniture layout, elevation, and section analysis, providing architects, designers, and developers with valuable insights into space utilization and floor layout optimization. With a focus on functionality and efficiency, our drawing includes detailed parking arrangements, ensuring seamless traffic flow and optimal utilization of available space. Whether you're planning an urban warehouse or a society development project, our Autocad file serves as a vital resource for visualizing and implementing your architectural concepts. Accessible and user-friendly, this drawing facilitates the creation of well-designed and organized warehouse facilities, contributing to the development of efficient and sustainable urban landscapes.

Uploaded by:
Liam
White

