Modern house facade design with section and floor plan detail dwg autocad drawing .
Description
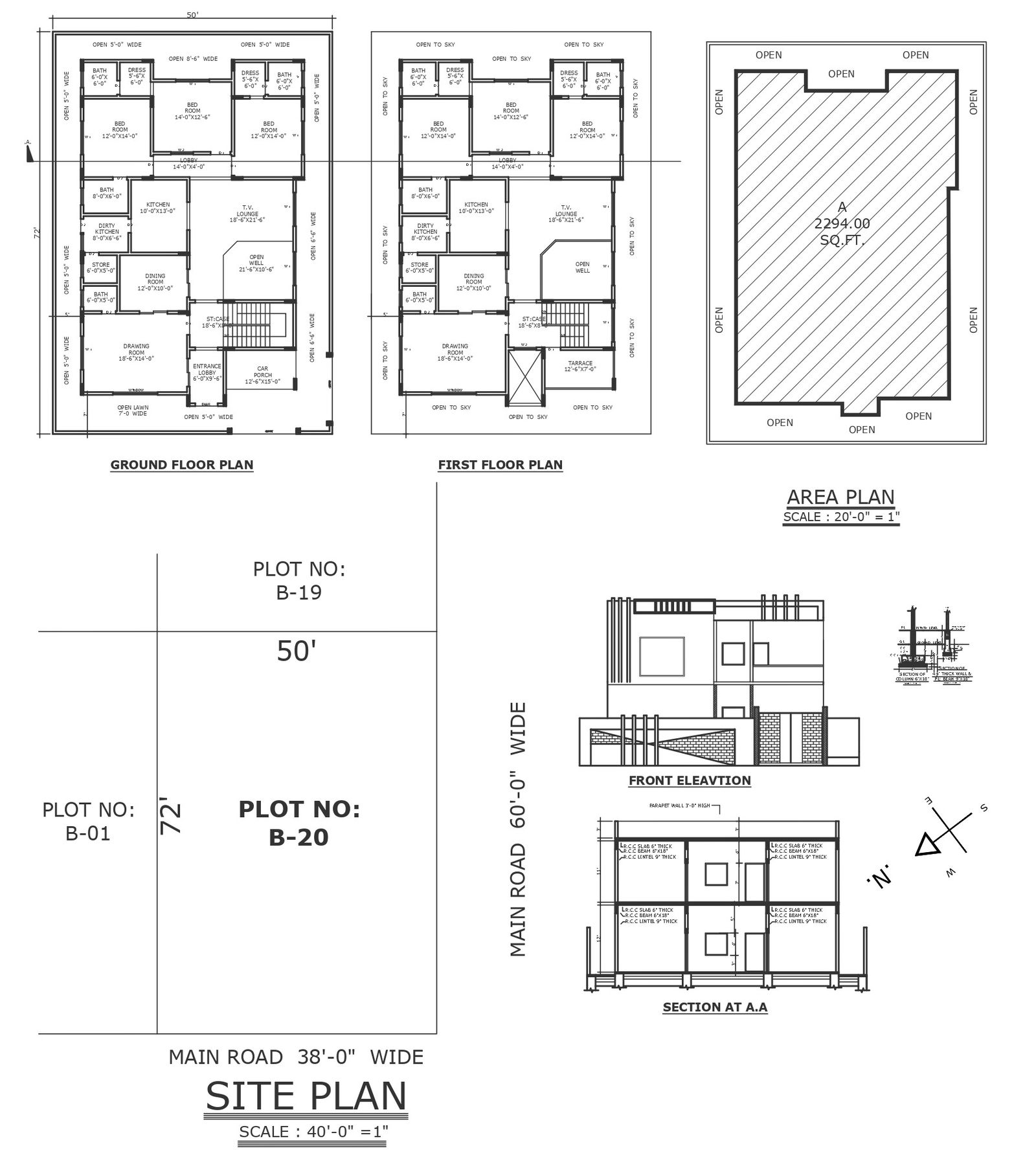
Discover a contemporary marvel in architectural design with this Autocad drawing showcasing a modern house facade. Delve into its intricate details, including section and floor plan information, offering a comprehensive view of the structure's layout and design elements. From plot details to furniture arrangements, this drawing encompasses essential aspects of urban design, ensuring seamless integration into any residential setting. With meticulous attention to elevation and section details, it provides valuable insights for architects and designers seeking inspiration for their projects. Tailored for society development and villa design, this SEO-friendly drawing is a valuable resource for professionals and enthusiasts alike. Available in Autocad format, it offers flexibility for customization, empowering users to adapt and refine the design to suit their specific needs. Elevate your architectural visions with this dynamic and versatile drawing, crafted to inspire innovation and creativity in modern housing design.

Uploaded by:
Liam
White

