North east facing house plan with elevation section and other details dwg autocad drawing .
Description
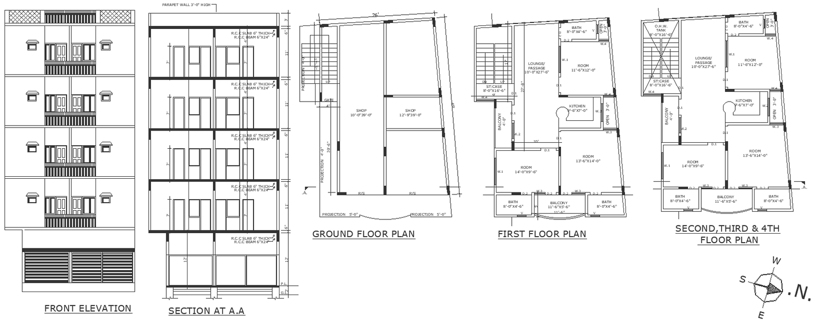
Discover the perfect blend of functionality and aesthetics with our meticulously crafted AutoCAD drawing showcasing a North East facing house plan. Delve into our DWG files to explore plot details and site analysis, ensuring seamless integration with your project's vision. From furniture arrangements to elevation and section details, our designs prioritize comprehensive space planning and floor layout optimization, ensuring every corner is utilized effectively. Delve deeper into our CAD drawings to uncover column intricacies and architectural facets, embodying the essence of urban design principles. Whether you're envisioning a cozy family home or a stylish villa, our North East facing house plans cater to every aspect of modern living. Trust our expertise to deliver sophisticated designs that exceed expectations, fostering sustainable and resilient communities. Unleash the potential of your project with our detailed and meticulously curated drawings, shaping the future of architectural excellence.

Uploaded by:
Liam
White

