North east facing house elevation design with plan and section dwg autocad drawing .
Description
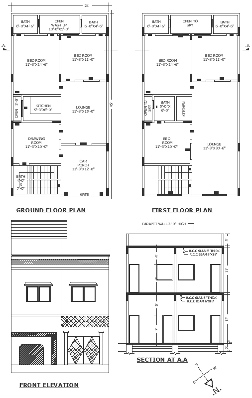
Discover the elegance of a North East facing house elevation design meticulously illustrated in our AutoCAD drawing, accompanied by a detailed plan and section. Delve into our DWG files to uncover plot details and site analysis, ensuring alignment with your project's vision. From furniture arrangements to elevation and section details, our designs prioritize comprehensive space planning and floor layout optimization, ensuring functionality and aesthetic appeal. Dive deeper into our CAD drawings to unveil column intricacies and architectural facets, epitomizing urban design principles. Whether you're envisioning a residential home, bungalow, or villa, our North East facing elevation designs seamlessly blend practicality with elegance. Trust our expertise to deliver sophisticated designs that exceed expectations, fostering sustainable and vibrant communities. Unleash the potential of your project with our meticulously curated drawings, shaping the future of architectural excellence.

Uploaded by:
Liam
White

