East facing house plan details with elevation section and house plan dwg autocad drawing .
Description
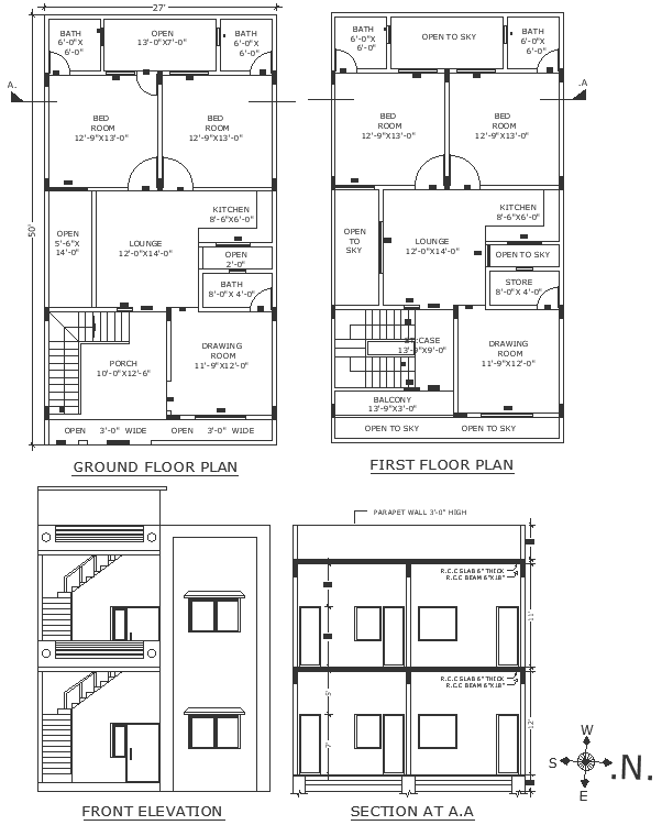
Explore the intricacies of an East-facing house plan detailed in our AutoCAD drawing, complete with elevation, section, and floor plan details. Delve into our DWG files to uncover plot details and site analysis, ensuring seamless integration with your project's vision. From furniture arrangements to elevation and section details, our designs prioritize comprehensive space planning and floor layout optimization, ensuring functionality and aesthetic appeal. Dive deeper into our CAD drawings to unveil column intricacies and architectural facets, epitomizing urban design principles. Whether you're envisioning a residential home, bungalow, or villa, our East-facing house plans cater to every aspect of modern living. Trust our expertise to deliver sophisticated designs that exceed expectations, fostering sustainable and vibrant communities. Unleash the potential of your project with our meticulously curated drawings, shaping the future of architectural excellence.

Uploaded by:
Liam
White

