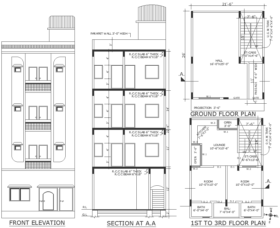
First to third floor plan design with detailed dwg autocad drawing .
Description
Explore the intricacies of multi-floor planning with our detailed AutoCAD drawing showcasing the design of the first to third floors. Delve into our DWG file to uncover plot details and site analysis, ensuring seamless integration with your project's vision. From furniture arrangements to elevation and section details, our designs prioritize comprehensive space planning and floor layout optimization, ensuring functionality and aesthetic appeal across all levels. Dive deeper into our CAD drawing to unveil column intricacies and architectural facets, epitomizing urban design principles. Whether you're planning a residential home, bungalow, or villa, our multi-floor plan offers versatility and practicality. Trust our expertise to deliver sophisticated designs that exceed expectations, contributing to the development of vibrant societies. Unleash the potential of your project with our meticulously curated drawings, shaping the future of architectural excellence.

Uploaded by:
Liam
White

