Drawing room with attach bathroom design with elevation section and other details dwg autocad drawing .
Description
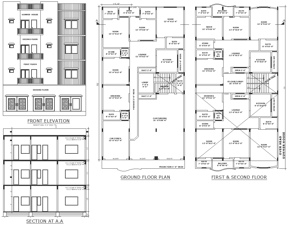
Explore our meticulously crafted AutoCAD drawing showcasing the design of a drawing room with an attached bathroom. Dive into the detailed elevation, section, and other intricacies seamlessly integrated into our DWG file. Our design emphasizes efficient space planning, optimizing the floor layout to maximize functionality and aesthetic appeal. From plot detail to furniture placement, every aspect is meticulously depicted, ensuring alignment with your project's vision. Unveil the architectural nuances and facade design elements intricately portrayed in our CAD drawing, reflecting contemporary urban design principles. Whether for a house, bungalow, or villa, our drawing room design caters to diverse architectural styles and preferences. Trust our expertise to deliver sophisticated designs that exceed expectations, contributing to the development of vibrant and livable spaces. Unlock the potential of your project with our meticulously curated drawings, shaping the future of architectural excellence.

Uploaded by:
Liam
White

