Basement floor plan with elevation section and detailed dwg autocad drawing .
Description
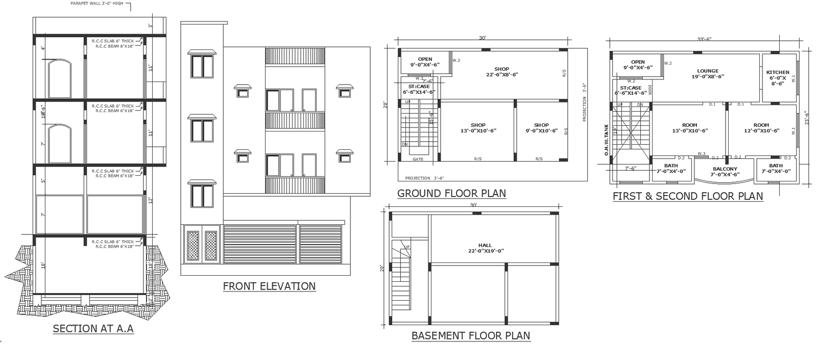
Discover the comprehensive basement floor plan meticulously crafted with detailed elevation and section views in our AutoCAD drawing. Unveil the intricate plot details, seamlessly integrated site analysis, and optimized furniture layout, ensuring functionality and aesthetics are perfectly balanced. Our design prioritizes efficient space planning, providing a seamless flow throughout the basement area. From column details to facade design elements, every aspect is meticulously portrayed, reflecting contemporary urban design principles. Whether for a house, bungalow, or villa, our drawing caters to diverse architectural styles and preferences, contributing to the development of vibrant and livable spaces. Trust our expertise to deliver sophisticated designs that exceed expectations, shaping the future of architectural excellence. Download our DWG file to unlock the potential of your basement project and embark on a journey towards creating a functional and visually stunning space.

Uploaded by:
Liam
White

