One feet six inch wide projection details with plan elevation section dwg autocad drawing .
Description
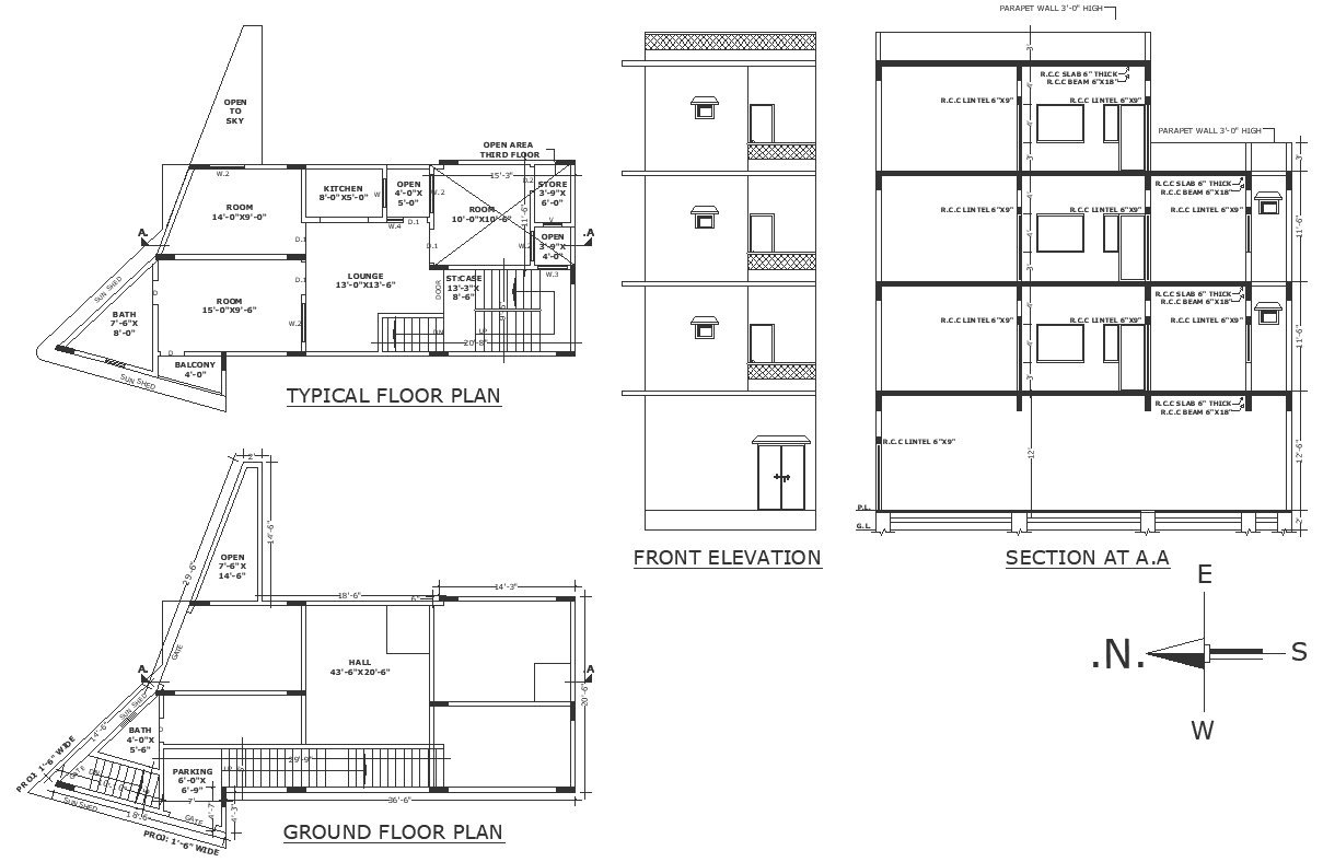
Our meticulously crafted AutoCAD drawing showcases detailed projections measuring one foot six inches in width, accompanied by comprehensive plans, elevations, and sections. This drawing provides a holistic view of the projection layout, ensuring seamless integration into your architectural projects. From plot details and site analysis to furniture placement and space planning, every aspect is meticulously considered to ensure functionality and aesthetic appeal. Our drawing incorporates façade design and architecture details, aligning with urban design principles for optimal results. Whether you're working on house plans, home plans, bungalow plans, or villa designs, our AutoCAD file streamlines the design process, allowing you to create inviting and practical spaces. Download our drawing today to elevate your architectural projects to new heights.

Uploaded by:
Liam
White

