Four feet wide projection details with plan elevation and details dwg autocad drawing .
Description
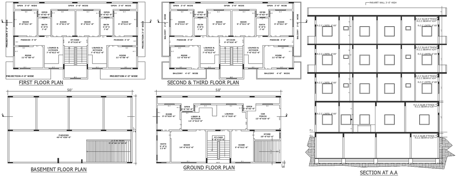
Our meticulously crafted AutoCAD drawing offers comprehensive plans, elevations, and detailed projections for a four-foot-wide architectural feature. Designed to enhance your architectural projects, this drawing includes thorough plot analysis, site evaluations, and furniture details to optimize space utilization. Whether you're an architect, engineer, or designer, our drawing provides valuable insights into elevation details, section views, and floor layouts, ensuring seamless integration into your design process. From space planning to façade design and architectural detailing, every aspect is meticulously considered to enhance both functionality and aesthetics. Download our AutoCAD file today to elevate your designs and create stunning architectural masterpieces that reflect innovation and sophistication.

Uploaded by:
Liam
White

