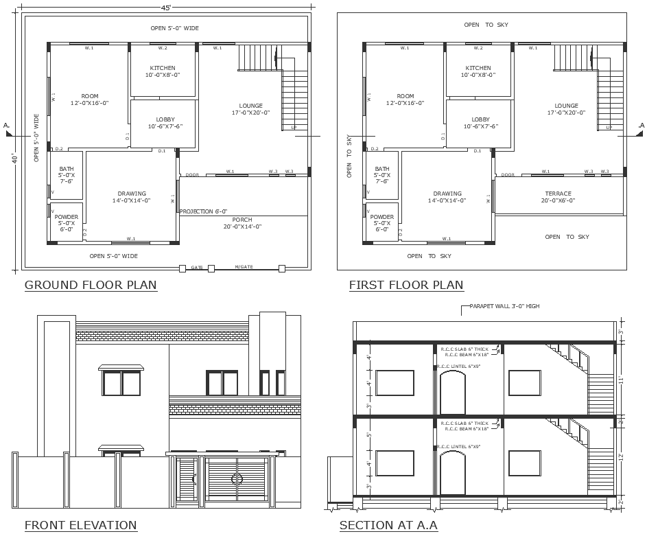
Five feet wide open to sky area design with elevation section and other detail dwg autocad drawing .
Description
Our AutoCAD drawing showcases a meticulously designed open-to-sky area, spanning five feet wide and featuring elevation views, section cuts, and other essential details. With a keen focus on plot detail and site analysis, this drawing ensures seamless integration into your architectural projects. From furniture placement to space planning, every aspect is carefully considered to optimize functionality and aesthetic appeal. Whether you're working on a house plan, home plan, bungalow plan, or villa design, our drawing provides valuable insights into facade design architecture, urban design, and society development. Download our AutoCAD file today to streamline your design process and create captivating outdoor spaces that harmonize with their surroundings while offering a delightful experience for occupants.

Uploaded by:
Liam
White

