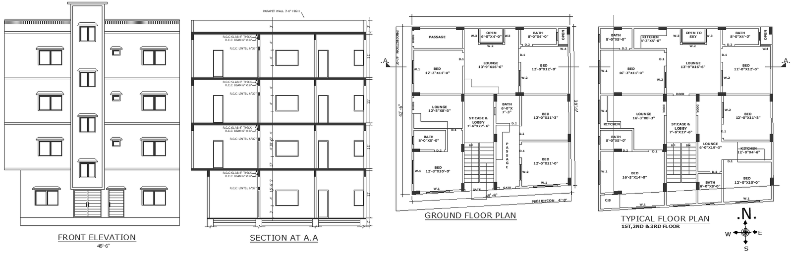
Forty nine feet by forty two feet plot size and house plan on it with elevation section and other details dwg autocad drawing .
Description
Our AutoCAD drawing offers meticulous design detailing for a balcony with a width of two feet six inches, presenting comprehensive elevation and section views. It includes essential plot details and site analysis, ensuring seamless integration with your architectural project. With a focus on furniture arrangement, elevation, and section details, this drawing provides valuable insights for optimizing space planning and floor layout. Whether you're refining column details or exploring façade design architecture, our drawing serves as a versatile resource for architects and designers. Elevate your urban design or society development project with this meticulously crafted AutoCAD file, available for download to streamline your design process. Enhance your house plan, home plan, bungalow plan, or villa design with our detailed balcony design, tailored to meet your project's unique requirements.

Uploaded by:
Liam
White

