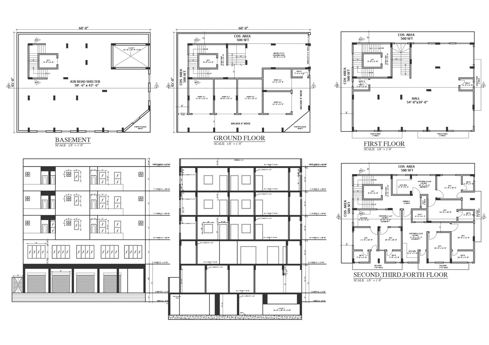
60ft X 45ft plot size four storey apartment detailed plan, sections and elevations DWG AutoCAD drawing.
Description
Explore the detailed architectural intricacies of a four-storey apartment in our AutoCAD drawing (DWG file). This comprehensive plan includes meticulously crafted floor plans, sections, and elevations, offering insights into optimal space planning and architectural design. From plot details to furniture arrangements, every aspect is carefully considered to create a functional and aesthetically pleasing living space. Elevations and sections provide architectural insights, while precise column details ensure structural integrity. Whether envisioning apartment or tenement design, our drawing provides invaluable insights into floor layouts and architectural intricacies. Enhance your project with our CAD drawings, unlocking endless design possibilities and meticulous attention to detail. From the ground floor to the fourth, experience the convenience and charm of this four-storey apartment design. Immerse yourself in the allure of this contemporary architectural marvel, where every detail reflects excellence in design and execution.
Uploaded by:

