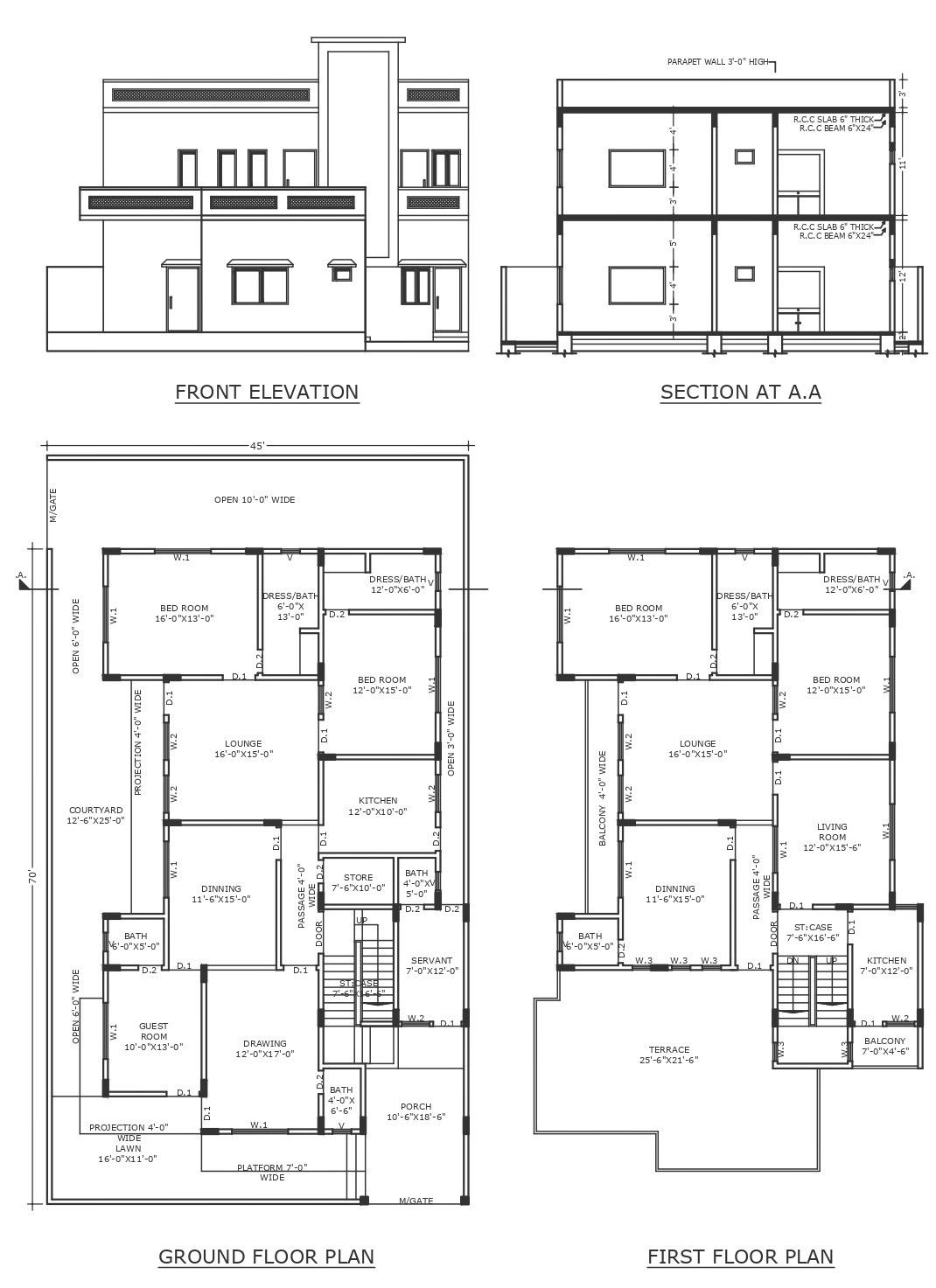
45 feet by 70 feet house plot size and house plan design with elevation and section details.
Description
Explore the meticulously crafted house plan for a 45 feet by 70 feet plot, featuring comprehensive elevation and section details. This design seamlessly integrates plot detail and site analysis to optimize space utilization and functionality. With a keen focus on furniture detail and space planning, every aspect of the floor layout is carefully considered to ensure comfort and practicality.
The elevation showcases sophisticated façade design, reflecting architectural elegance and contributing to urban design principles. Detailed section and column elements enhance structural integrity while complementing the overall aesthetic appeal. Ideal for various housing needs, including bungalow plans, villa designs, or urban dwellings, this plan offers AutoCAD files and CAD drawings for easy customization and implementation.Whether for personal residence or societal development projects, this versatile house plan embodies quality, functionality, and aesthetic excellence.

Uploaded by:
Liam
White

