renovation of ground plus four floor apartment building facade design dwg autocad drawing .
Description
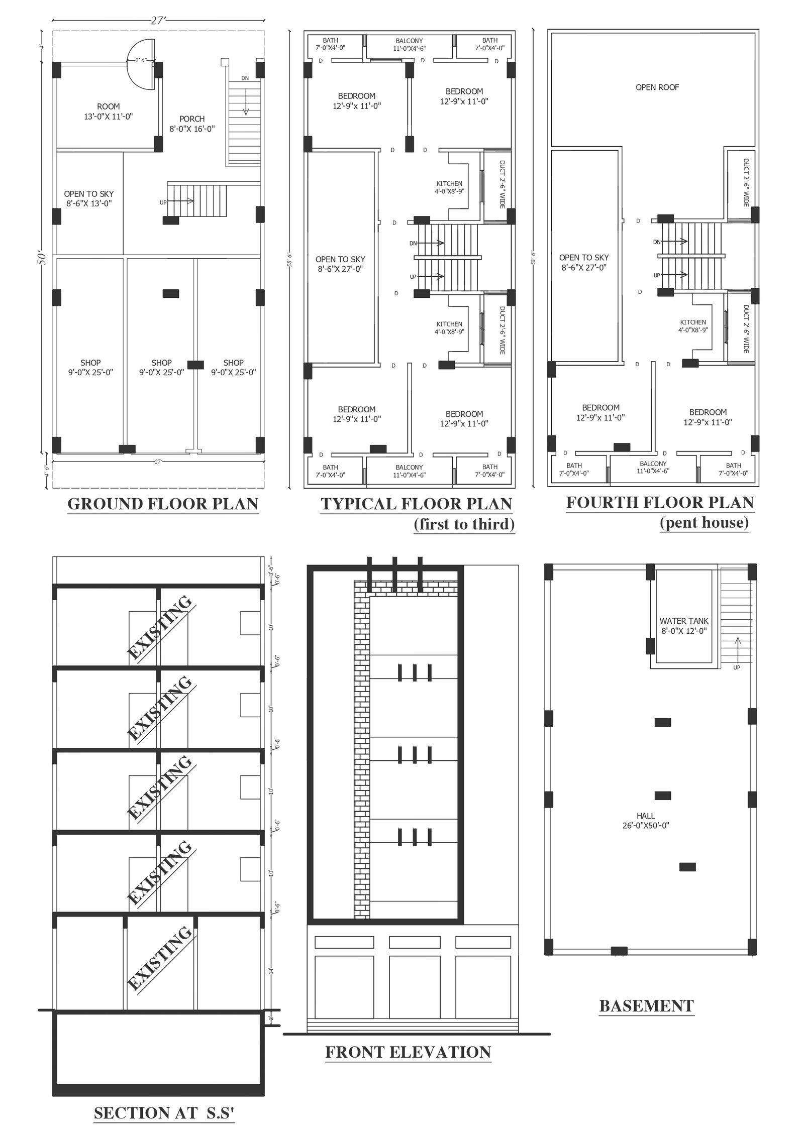
Revamp your apartment building with our meticulously crafted DWG AutoCAD drawing, presenting a comprehensive facade design for the renovation of a ground plus four-floor structure. Our design focuses on plot detail, site analysis, and furniture layout to ensure a seamless integration of the renovation plan.Featuring detailed elevation and section views, our drawing provides insights into space planning, floor layout, and column details, ensuring both functionality and aesthetic appeal. With emphasis on facade design architecture detail, our renovation plan breathes new life into the building, enhancing its urban design and contributing to society development.Accessible through AutoCAD files and CAD drawings, our design offers flexibility and ease of customization to suit specific project requirements. Elevate your apartment building's exterior with our renovation plan, combining style, functionality, and architectural finesse for a truly transformative experience.

Uploaded by:
Liam
White
