Kitchen Elevation with Appliance Details and Tile Layout CAD drawing .
Description
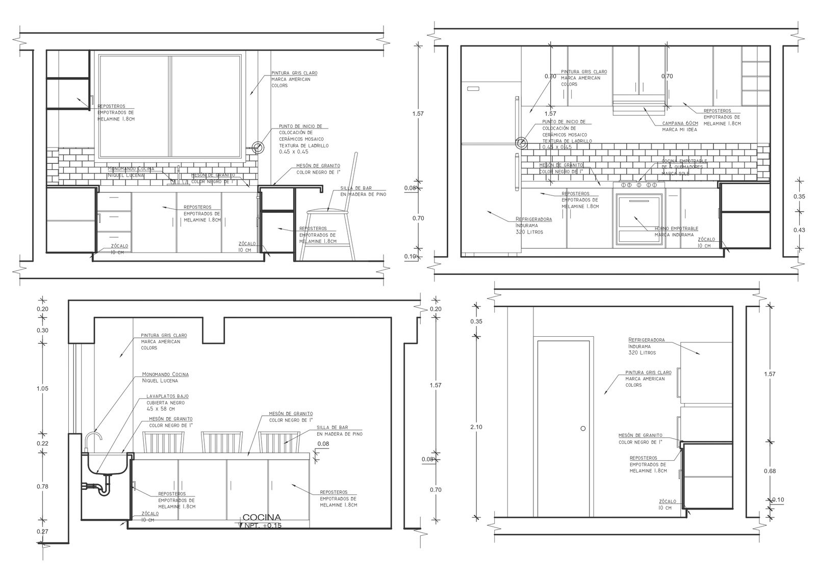
Our AutoCAD DWG drawing presents a comprehensive view of a kitchen elevation, featuring detailed appliance specifications, labeling, and tile layout. This meticulously crafted drawing serves as a valuable resource for architects, designers, and contractors involved in kitchen design projects.From the placement of appliances to the layout of tiles, every aspect of the kitchen elevation is meticulously depicted, ensuring clarity and accuracy in planning and implementation. The labeled elements provide clear guidance, making it easy for stakeholders to understand the design intent and functionality of the kitchen.With a focus on precision and detail, our drawing facilitates effective communication and collaboration among project teams. Whether you're remodeling an existing kitchen or designing a new one from scratch, our AutoCAD DWG drawing offers essential insights to ensure the success of your project.

Uploaded by:
Liam
White

