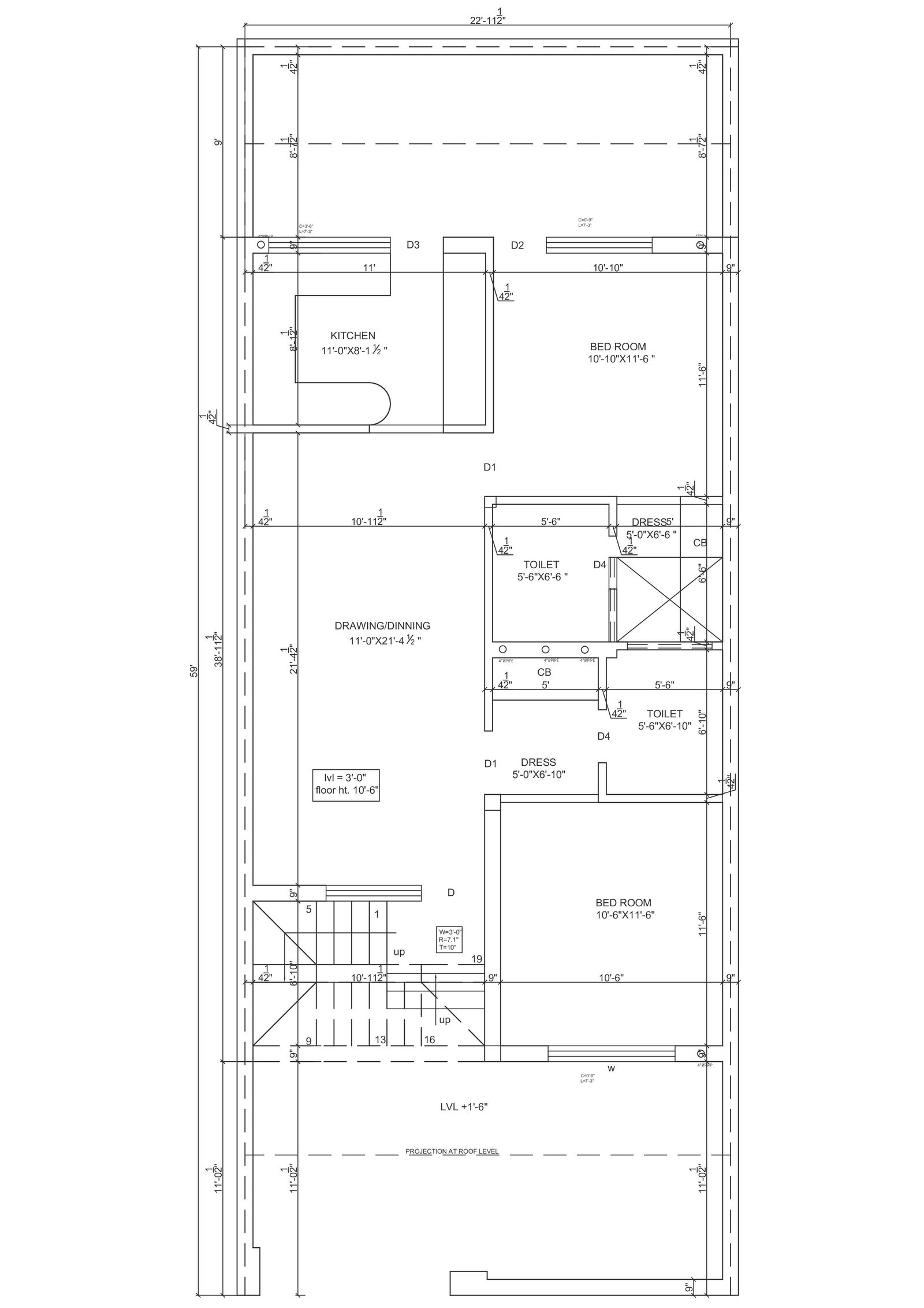
Fraction dimension details for twenty two feet by fifty nine feet house plan dwg autocad drawing.
Description
Explore the intricate details of our meticulously designed house plan with our AutoCAD drawing. With precise fraction dimension details, our drawing ensures accuracy and clarity in the layout of your twenty-two feet by fifty-nine feet home.From room dimensions to kitchen layouts, our drawing provides comprehensive insights into the spatial planning of your house. Whether you're visualizing furniture arrangements or optimizing space utilization, our AutoCAD file offers invaluable guidance for your project.Unlock the potential of your home design with our detailed drawing, allowing you to make informed decisions and bring your vision to life. With a focus on functionality and efficiency, our house plan ensures a harmonious living environment tailored to your needs.Download our AutoCAD drawing today to embark on your journey toward creating the perfect home.

Uploaded by:
Liam
White

