Resort design first floor with gym gaming room and theater dwg autocad drawing .
Description
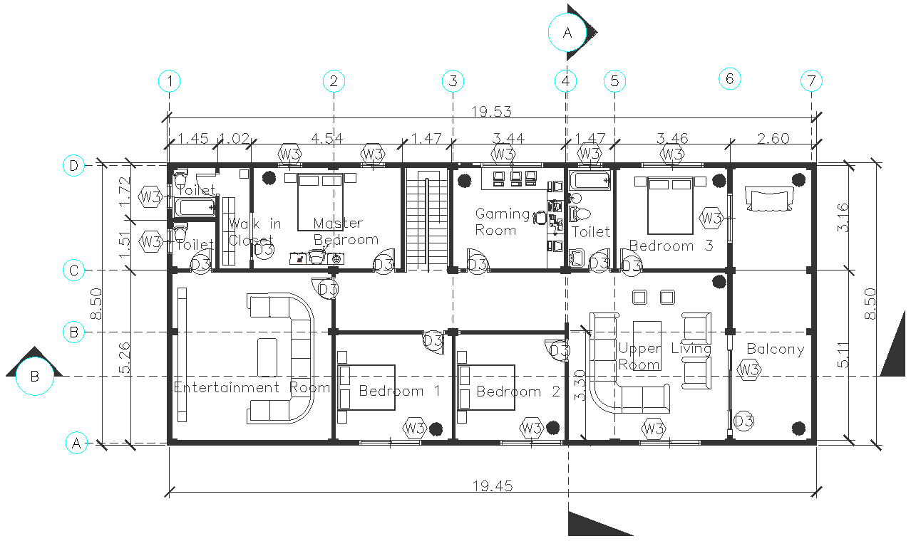
Welcome to our resort design first floor AutoCAD drawing, meticulously crafted to provide an exceptional experience for guests. This drawing showcases detailed layouts for key facilities including a gym, gaming room, and theater, ensuring a memorable stay for all visitors.Guests can kick-start their day with an energizing workout at the gym, equipped with modern amenities for a fulfilling exercise regimen. For those seeking entertainment and recreation, the gaming room offers a diverse range of activities to enjoy. Additionally, our resort boasts a state-of-the-art theater where guests can immerse themselves in cinematic experiences and live performances.Moreover, the drawing includes precise parking details to ensure convenience for guests arriving by car. With facilities like a spa and various leisure amenities, our resort design promises a harmonious blend of relaxation and entertainment. Download our AutoCAD drawing to bring this vision to fruition and create a captivating resort destination.

Uploaded by:
Liam
White

