Wall cladding details with dimensions dwg autocad drawing .
Description
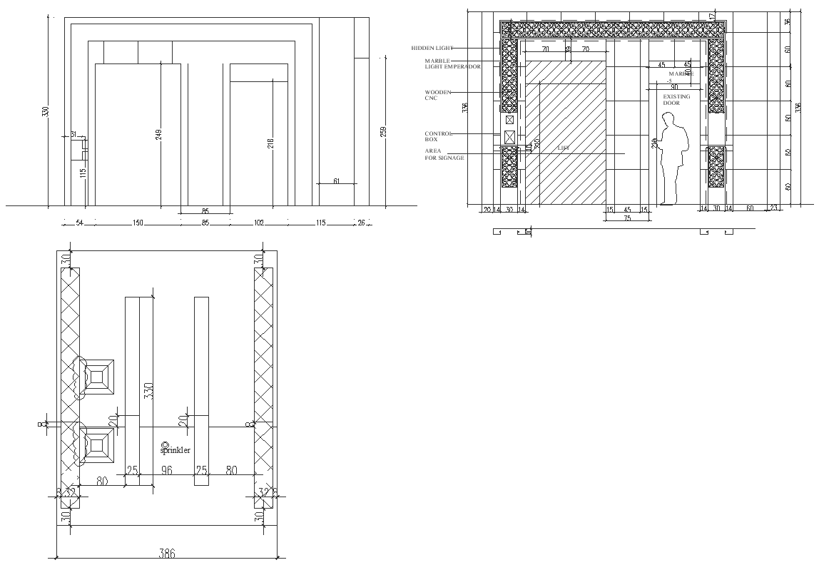
Explore comprehensive wall cladding details with precise dimensions in this AutoCAD drawing. From the design of the cladding to its dimensions, every aspect is meticulously captured, ensuring accuracy and ease of implementation for architects, designers, and builders.This DWG file provides valuable insights into various cladding designs and patterns, facilitating informed decision-making during the design and construction phases. With detailed dimensions included, users can ensure proper alignment and fitment of the cladding elements, enhancing the overall aesthetic appeal and functionality of the structure.Keywords such as "cladding details," "cladding design," "wall paneling," "dimension," and "human figure" optimize the description for search engines, making it easier for users to discover relevant AutoCAD drawings for their architectural projects.Download our DWG file to access comprehensive wall cladding details and incorporate them seamlessly into your designs, enhancing the visual appeal and durability of your structures.

Uploaded by:
Liam
White

