Workstation Design with Printer and Socket in DWG File
Description
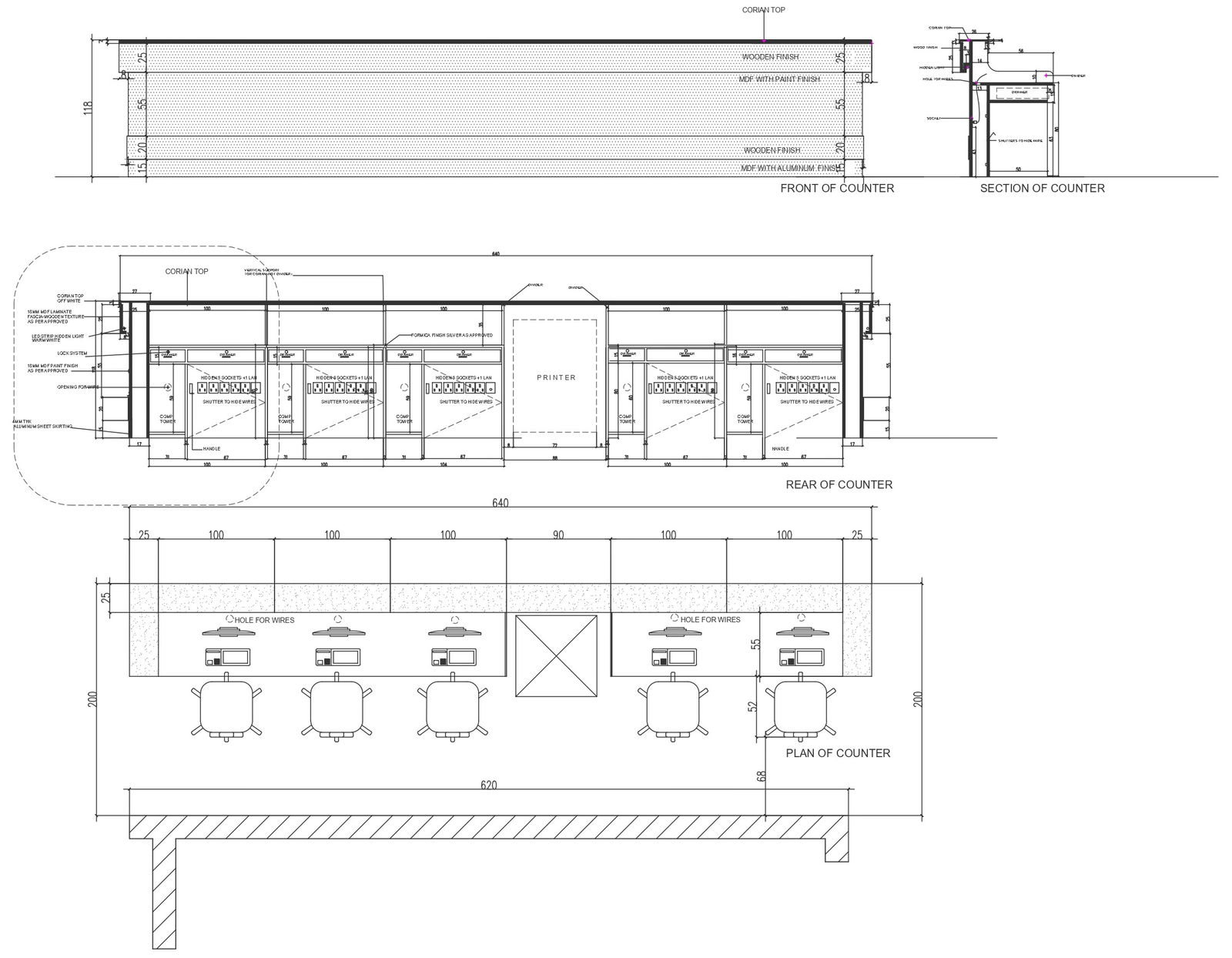
Discover comprehensive workstation details, including socket and printer configurations, in this meticulously crafted AutoCAD drawing. From the arrangement of sockets to the placement of printers, every aspect of the workstation setup is meticulously captured, ensuring optimal functionality and convenience.This DWG file provides valuable insights into workstation design, including details on shutter and drawer mechanisms for storage solutions. With precise dimensions included, users can ensure proper alignment and fitment of workstation components, enhancing productivity and efficiency in the workplace.Keywords such as "workstation details," "socket details," "printer details," "shutter mechanism," "drawer mechanism," and "dimensions" optimize the description for search engines, making it easier for users to discover relevant AutoCAD drawings for their office space planning needs.Download our DWG file to access comprehensive workstation details and elevate the functionality and organization of your workspace.

Uploaded by:
Liam
White

