Ceiling layout with light details and schedule dwg autocad drawing .
Description
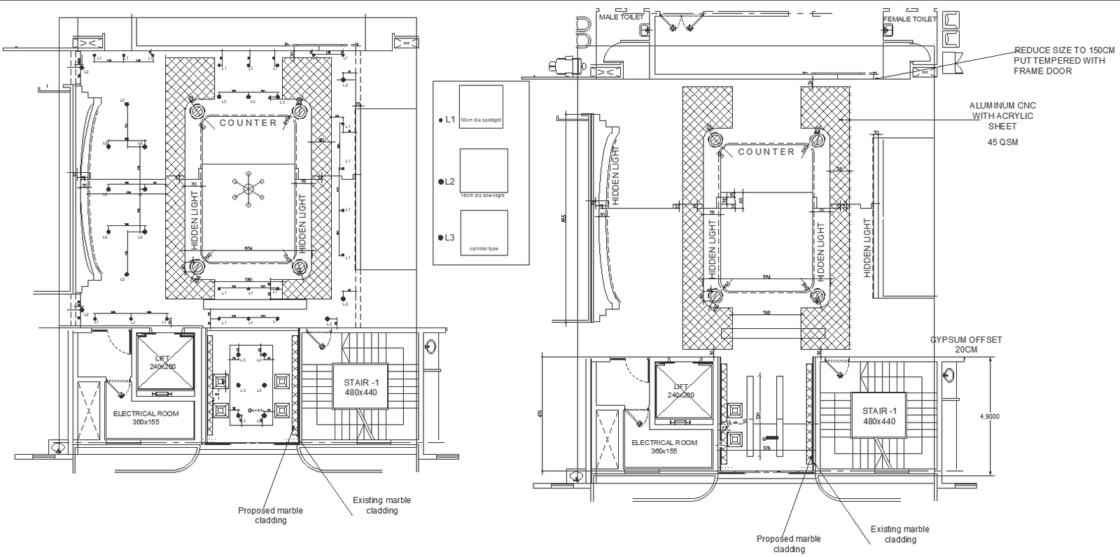
Explore our meticulously crafted AutoCAD drawing showcasing the ceiling layout with comprehensive light details and schedule. This DWG file provides a detailed overview of the ceiling design, including the placement of hidden lights, open lights, spotlights, and counters.With precise dimensions and annotations, users can easily understand the spatial arrangement of lights and plan their installation effectively. The accompanying schedule offers valuable information on the types and quantities of lights required, facilitating seamless procurement and installation processes.Optimized for search engines, this description incorporates keywords like "ceiling layout," "hidden lights," "open light," "spotlight," and "counter," ensuring easy discovery by users seeking detailed ceiling designs for their projects.Download our DWG file to access a comprehensive guide to ceiling layout and light details, streamlining the design and implementation of your interior spaces.

Uploaded by:
Liam
White

