Restaurant design with furniture details and kitchen detail dwg autocad drawing .
Description
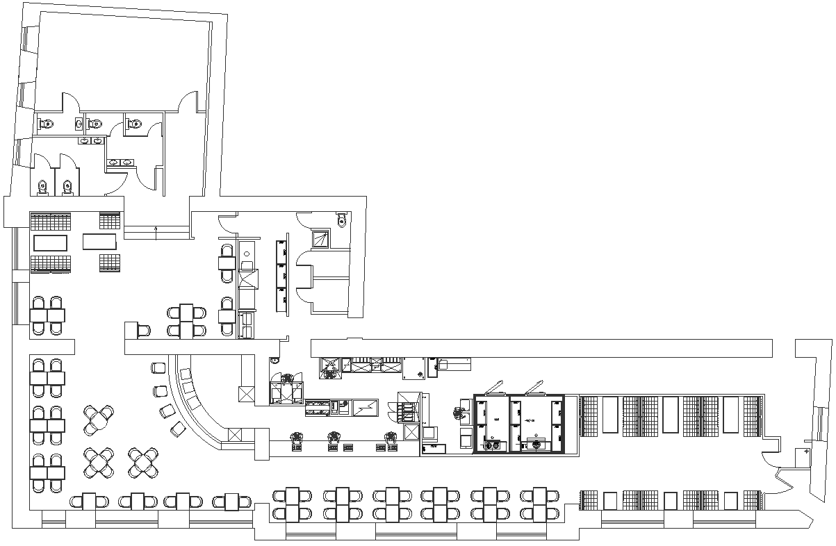
Embark on a culinary journey with our meticulously crafted restaurant design in AutoCAD format. This DWG drawing encapsulates the essence of hospitality, combining exquisite furniture details with comprehensive kitchen layout plans.From the inviting ambiance of the seating arrangement to the functional efficiency of the kitchen layout, every aspect of this restaurant design is meticulously curated to elevate the dining experience. Whether you're a restaurateur, designer, or architect, our SEO-friendly description emphasizes keywords like "restaurant design," "furniture detail," "kitchen detail," and "space planning," ensuring easy accessibility for those seeking to enhance their hospitality projects.Download our DWG file to explore the intricate details of this restaurant design and transform your vision into a culinary masterpiece that delights patrons and elevates dining experiences.

Uploaded by:
Liam
White

