Terrace with relaxing chair design with detailed house plan dwg autocad drawing .
Description
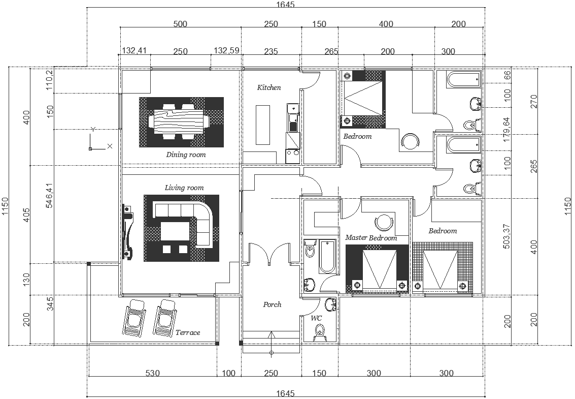
Our AutoCAD drawing showcases a serene terrace adorned with relaxing chair designs, complementing a meticulously detailed house plan. This DWG file provides architects and homeowners with a comprehensive layout, including furniture placement, dimension details, and essential house plan elements.Ideal for a weekend retreat or a cozy outdoor space, the terrace design offers a perfect blend of comfort and functionality. With keywords like "house plan," "furniture layout," "dimension details," and "weekend home," users can easily navigate and access relevant information within the drawing.Download our DWG file to explore the terrace design along with kitchen details, plumbing layout, electrical layout, and elevation and section views. Whether for relaxation or entertainment, our drawing ensures a well-planned and visually appealing outdoor area that enhances the overall charm of your home.
File Type:
DWG
File Size:
333 KB
Category::
Interior Design
Sub Category::
Living Room Interior Design
type:
Gold

Uploaded by:
Liam
White

