Bank design with plan and elevation details dwg autocad drawing .
Description
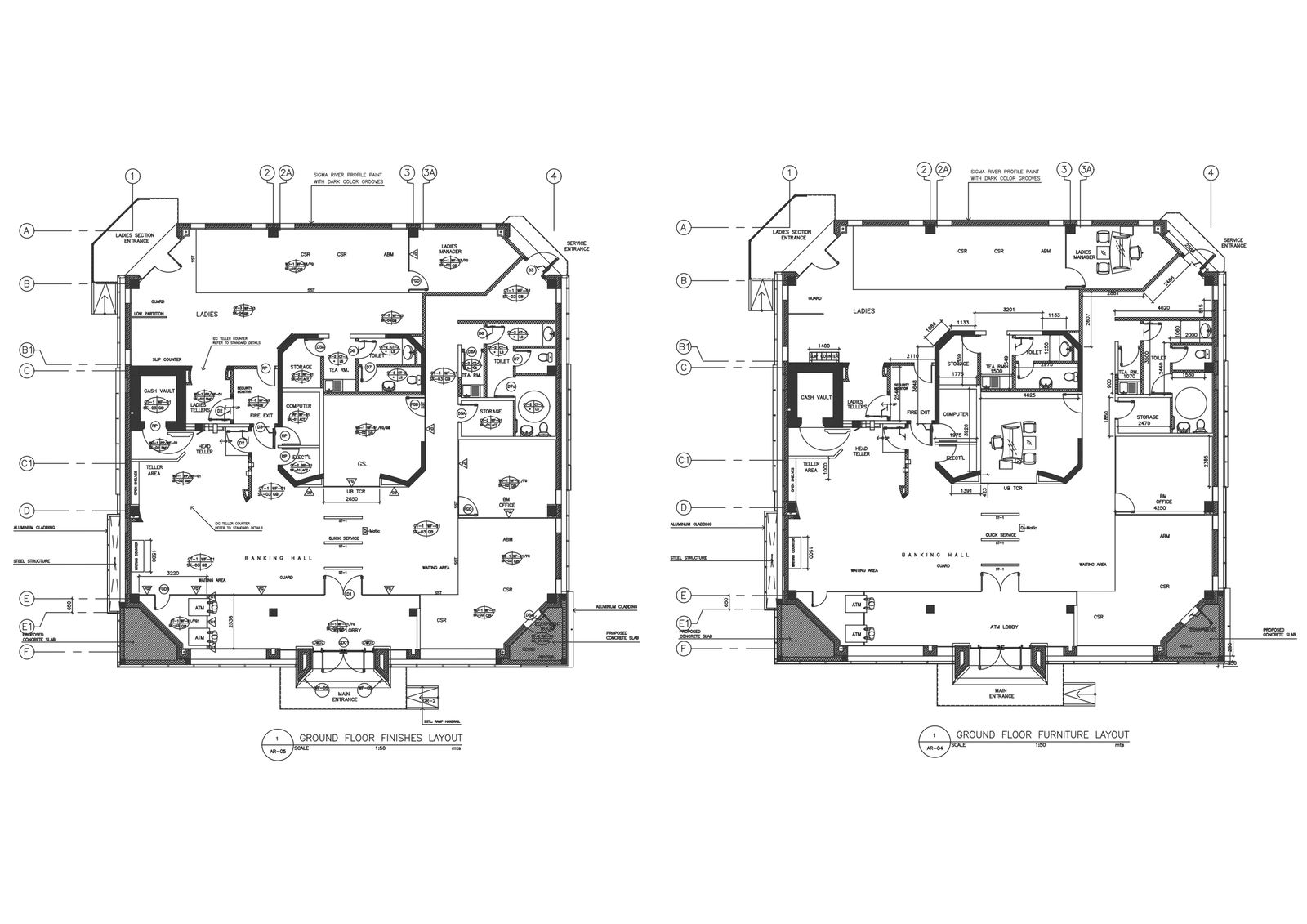
Explore the architectural brilliance of bank design with our meticulously crafted AutoCAD drawing, featuring comprehensive plan and elevation details. Our DWG file offers an in-depth view of the bank layout, complete with precise dimensions and essential design elements.Delve into the intricacies of bank design as our CAD drawing provides detailed representations of the plan, elevation, and section views, capturing the essence of the architectural vision. With specific areas highlighted, such as offices, staff rooms, and pantries, our 2D drawing offers valuable insights into the functional layout of the bank.Unlock the full potential of your architectural projects with our CAD file, meticulously crafted to streamline the design process and ensure accuracy in every aspect. With our detailed AutoCAD drawing, you'll have all the tools you need to visualize and refine your bank design. Elevate your architectural aspirations with our comprehensive collection of DWG files, setting the stage for sophisticated and efficient banking spaces.

Uploaded by:
Liam
White

