Bank planning with site analysis and space planning dwg autocad drawing .
Description
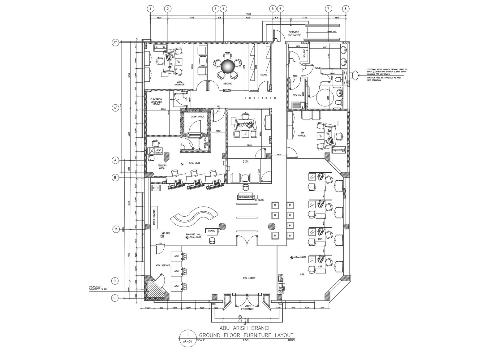
Embark on a journey of meticulous bank planning with our AutoCAD drawing, meticulously crafted to incorporate site analysis and space planning. Our DWG file offers a comprehensive view of the bank design process, complete with detailed site analysis and optimized space planning.Explore the intricacies of bank design and planning as our CAD drawing captures the essence of the site's analysis, ensuring that every aspect of the space is utilized efficiently. With a focus on space planning, our 2D drawing provides insights into the layout and organization of the bank's interior, optimizing functionality and flow.Unlock the full potential of your bank design projects with our CAD file, meticulously crafted to streamline the planning process and ensure accuracy in every aspect. With our detailed AutoCAD drawing, you'll have all the tools you need to visualize and refine your bank planning. Elevate your design aspirations with our comprehensive collection of DWG files, setting the stage for innovative and efficient bank spaces.

Uploaded by:
Liam
White

