Column details with bolts and nuts details dwg autocad drawing .
Description
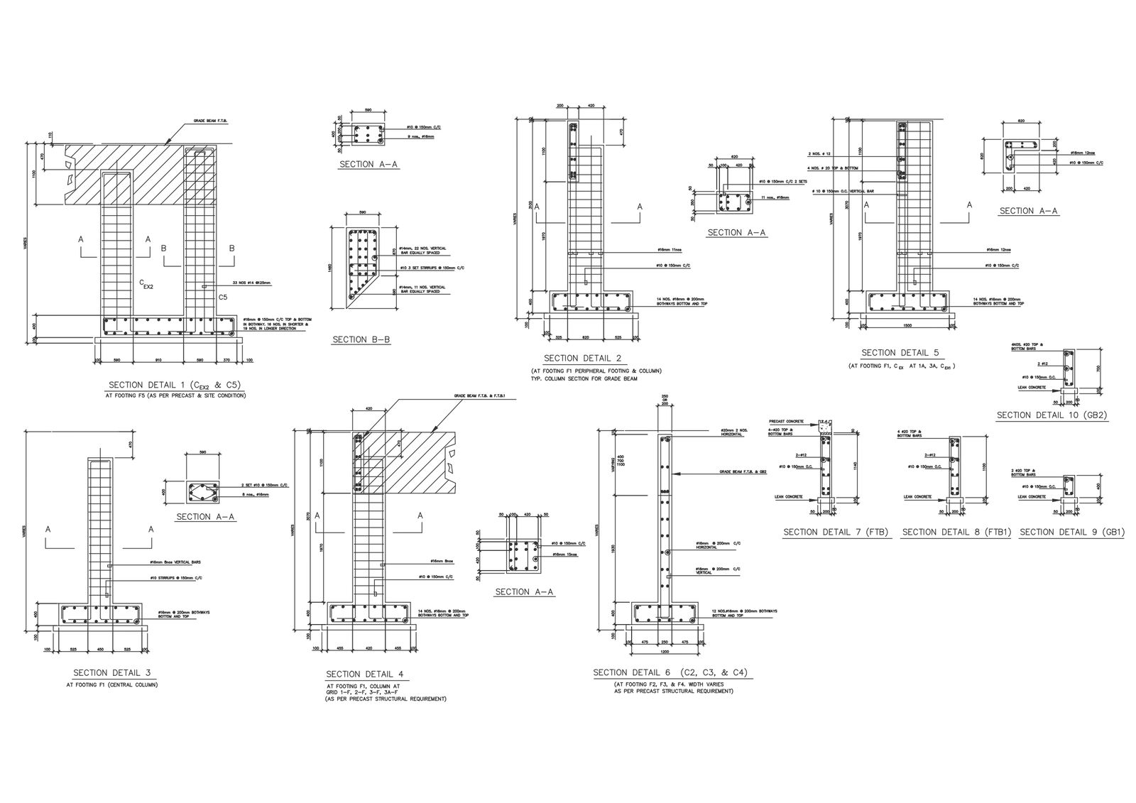
Explore the robustness of building structures with our meticulously detailed AutoCAD drawing in DWG format, showcasing column details with bolts and nuts. Our DWG file offers an in-depth view of the structural integrity, providing architects, engineers, and contractors with essential specifications for construction projects.Delve into the intricacies of column design with our CAD drawing, highlighting the placement and dimensions of bolts and nuts. Whether you're planning new construction or renovating existing structures, our 2D drawing offers valuable insights into the building's stability and durability.Unlock the full potential of your construction projects with our CAD file, meticulously crafted to streamline the design process and ensure precision in every detail. With our detailed AutoCAD drawing, you'll have all the tools you need to ensure the structural integrity of your buildings.

Uploaded by:
Liam
White

