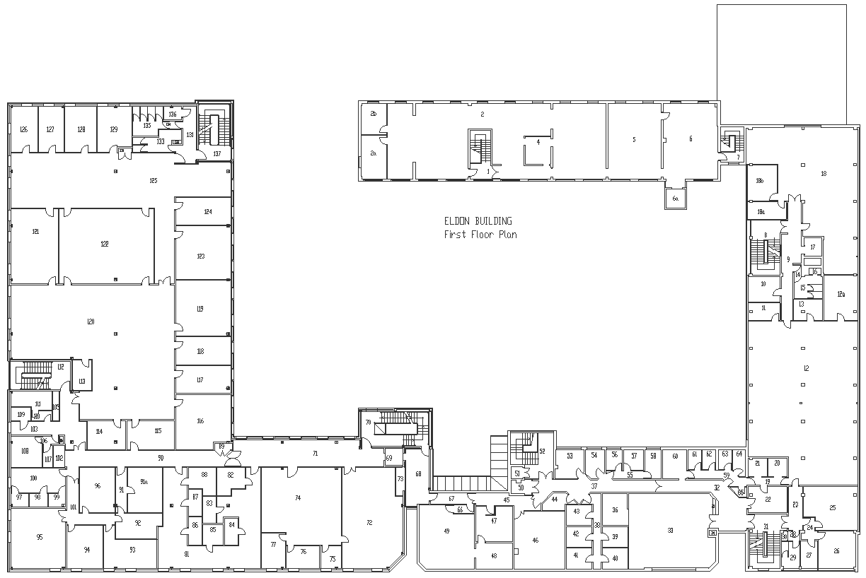
First floor plan for eldon building with dimension details dwg autocad drawing .
Description
Explore the layout of Eldon Building's first floor with this comprehensive DWG AutoCAD drawing. Detailed dimensions, door and window specifications, and other essential details are meticulously depicted, offering valuable insights for architects, designers, and planners. Whether you're embarking on a renovation project or conducting architectural analysis, this drawing provides a clear and informative representation of the first floor's plan. Enhance your understanding of spatial organization and flow within Eldon Building, facilitating informed decision-making and effective planning strategies. Download the DWG file to access this valuable resource for your architectural endeavors.
File Type:
DWG
File Size:
316 KB
Category::
Construction
Sub Category::
Construction Detail Drawings
type:
Gold

Uploaded by:
Liam
White

