Hoistway plan with pit plan and beam details dwg autocad drawing .
Description
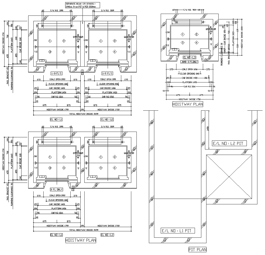
Explore the comprehensive details of hoistway planning with our meticulously crafted AutoCAD DWG drawing. This drawing provides a detailed overview of hoistway sections, including precise dimensions, labeling, and crucial beam details. Additionally, it includes a comprehensive pit plan, ensuring all aspects of the hoistway are thoroughly covered.Architects, engineers, and designers will find our DWG file invaluable for designing and planning elevator systems. With clear labeling and accurate dimensions, you can optimize your designs and ensure compliance with safety standards.Download our DWG drawing today to streamline your hoistway planning process. With detailed beam information, pit planning, and comprehensive hoistway sections, you'll have everything you need to create safe, efficient, and functional elevator systems.

Uploaded by:
Liam
White

