Public gents and ladies toilet detail plan DWG AutoCAD file
Description
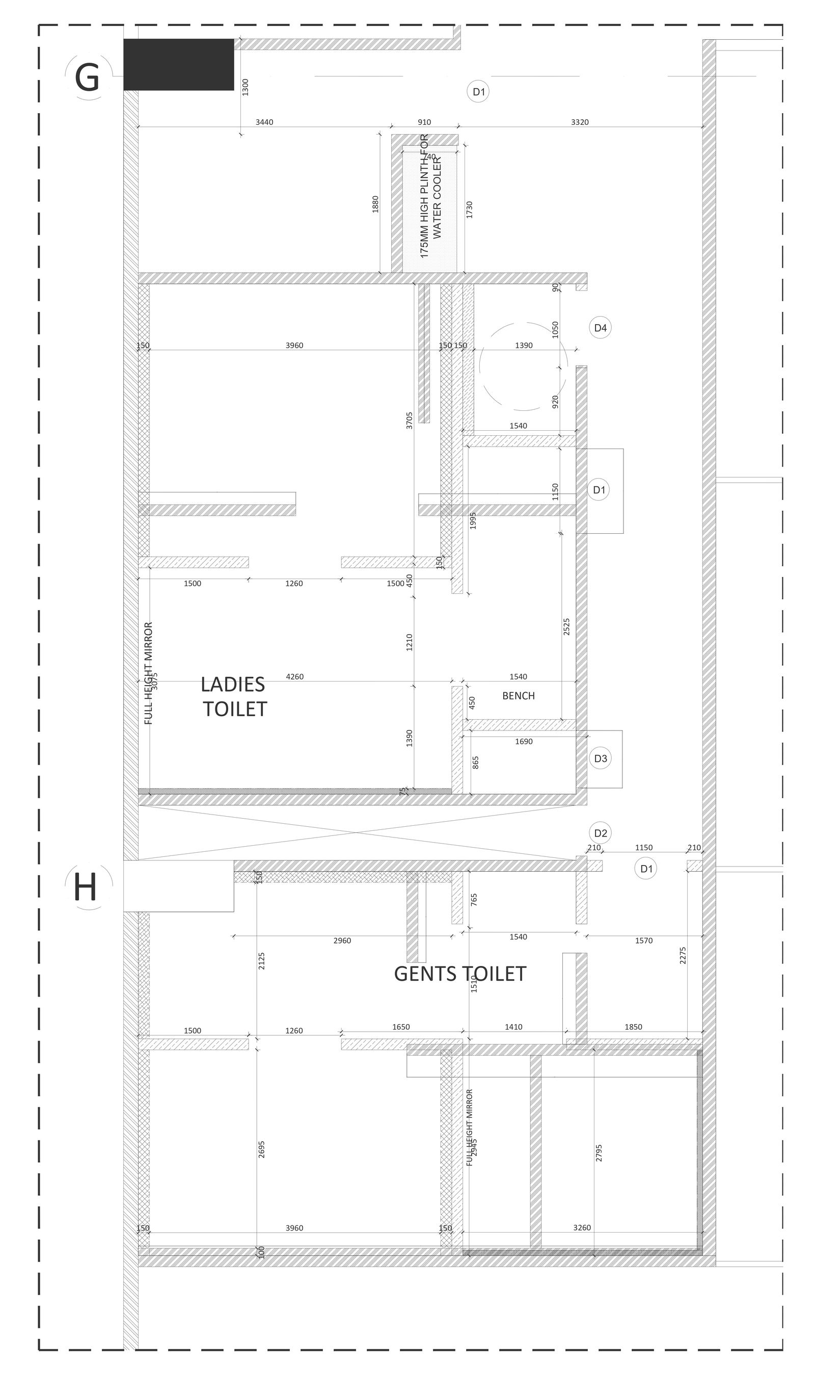
Discover a comprehensive DWG AutoCAD file showcasing detailed floor plans and wall layouts for public gentlemen's and ladies' toilets. Our CAD drawing includes precise spatial arrangements ideal for efficient toilet space planning. Explore the intricacies of the layout design, including optimized floor utilization and clear demarcations of wall configurations. This AutoCAD file offers a valuable resource for architects, designers, and engineers seeking insightful toilet layout concepts. Access a professional 2D drawing that facilitates meticulous planning and execution of restroom projects. Dive into the specifics of toilet space planning through this DWG file, meticulously crafted to enhance your design process. Unlock the potential of detailed floor plans and wall layouts with our CAD drawings. Download this DWG file to streamline your project and elevate your design expertise.
File Type:
DWG
File Size:
585 KB
Category::
Dwg Cad Blocks
Sub Category::
Windows And Doors Dwg Blocks
type:
Gold
Uploaded by:

