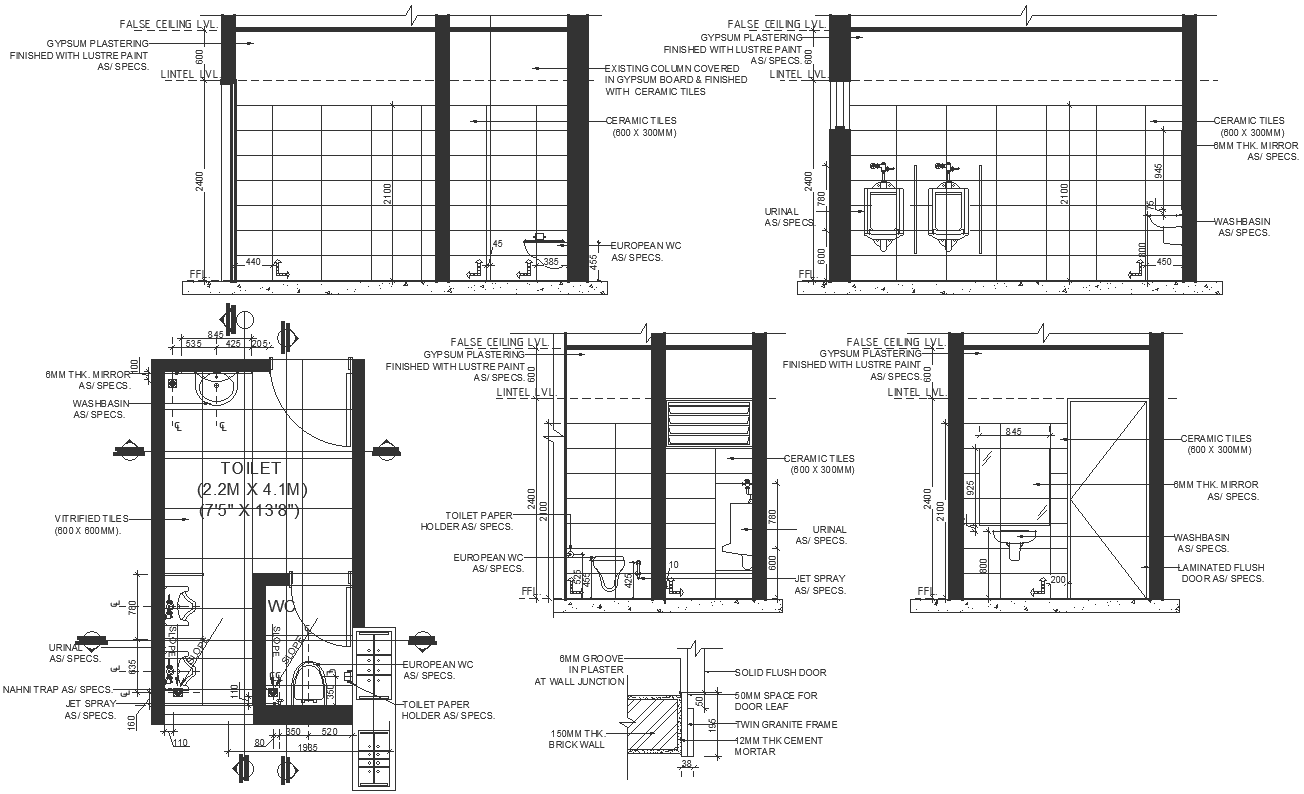
Toilet plan design with nahani trap and vitrified tiles details dwg autocad drawing .
Description
Our DWG Autocad drawing offers a comprehensive toilet plan design, complete with detailed specifications for nahani trap installation and vitrified tiles layout. Architects, designers, and engineers can utilize this drawing to plan and visualize the layout of toilets in various projects.With precise elevation views and section details, our drawing provides valuable insights into the placement of fixtures, including the nahani trap, as well as the arrangement of vitrified tiles on the floor and walls. Whether you're designing residential bathrooms, commercial restrooms, or public facilities, this drawing serves as a reliable reference for ensuring optimal functionality and aesthetic appeal.Download our DWG file today to access this detailed toilet plan design, and streamline your design process with accurate measurements and layout specifications. Enhance the efficiency and quality of your projects with our comprehensive Autocad drawing.
File Type:
DWG
File Size:
5 MB
Category::
Interior Design
Sub Category::
Architectural Bathrooms And Interiors
type:
Gold

Uploaded by:
Neha
mishra

