Restroom plan design with elevation and section details dwg autocad drawing .
Description
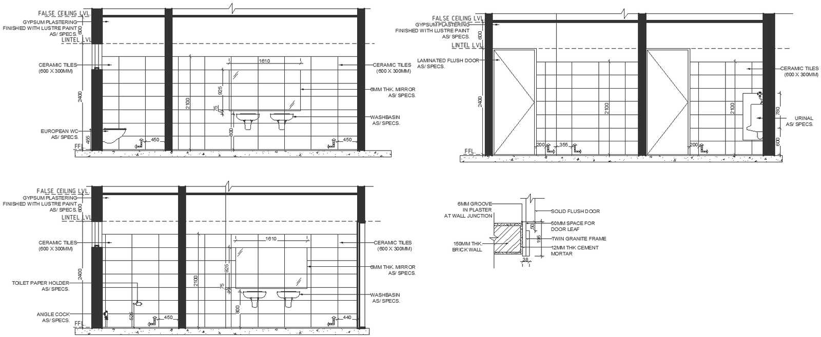
This finely detailed restroom plan design is shown in our DWG Autocad drawing, which includes section and elevation views. This drawing can be used by designers, engineers, and architects to plan and visualize the arrangement of restrooms in various projects.Our drawing provides useful information about the placement of fixtures and finishes since it has accurate elevation and section data, along with guidelines for the installation of nahani traps and vitrified tile layout. This drawing is a useful tool for maximizing both practicality and beauty when constructing toilets for public areas, commercial buildings, or institutional facilities.
File Type:
DWG
File Size:
5 MB
Category::
Interior Design
Sub Category::
Architectural Bathrooms And Interiors
type:
Gold

Uploaded by:
Liam
White

