Wall sheeting detail in elevation of factory building DWG AutoCAD drawing
Description
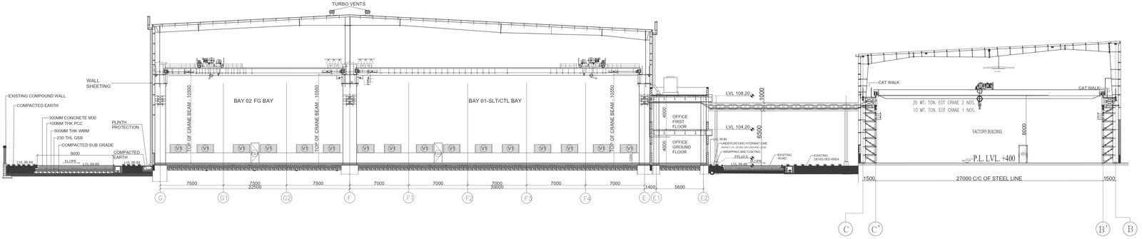
Discover the detailed wall sheeting elevation of a factory building in this DWG AutoCAD drawing. This comprehensive design features steel sheeting specifics essential for industrial plant construction. The drawing includes detailed structure elements, furniture layout, and elevation views, providing a clear understanding of the factory's design. With space planning, floor layout, column details, and section details, this drawing ensures efficient and practical construction. It's an invaluable resource for architects, engineers, and construction professionals seeking precise guidelines and visual insights. Enhance your project with this detailed AutoCAD file, ensuring accurate implementation of wall sheeting in your factory design.
Uploaded by:

