Changing room elevation and plan details dwg autocad drawing .
Description
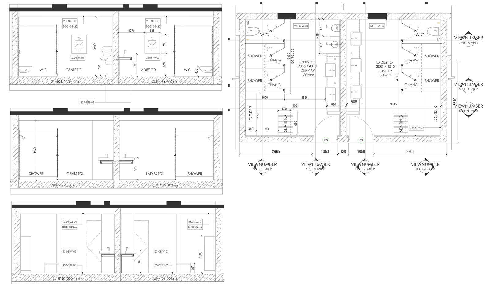
Revamp your changing room designs with our comprehensive collection of elevation and plan details, meticulously crafted in DWG AutoCAD drawing format. Perfect for architects and designers seeking precision and functionality, our CAD files offer seamless integration and easy customization. With detailed 2D drawings capturing every aspect of the changing room's elevation and plan, our designs ensure that every detail is meticulously planned and executed. Elevate your projects with our top-notch CAD files, designed to streamline your workflow and inspire creativity. From the layout to the fixtures and fittings, our changing room designs offer a perfect blend of style and functionality. Explore the versatility of our premium AutoCAD files and unlock endless design possibilities for your changing room spaces. Whether for gyms, retail stores, or leisure facilities, our elevation and plan details are the ideal solution for creating functional and stylish changing room environments.

Uploaded by:
Liam
White

