Corporate office design evercrest dwg autocad drawing .
Description
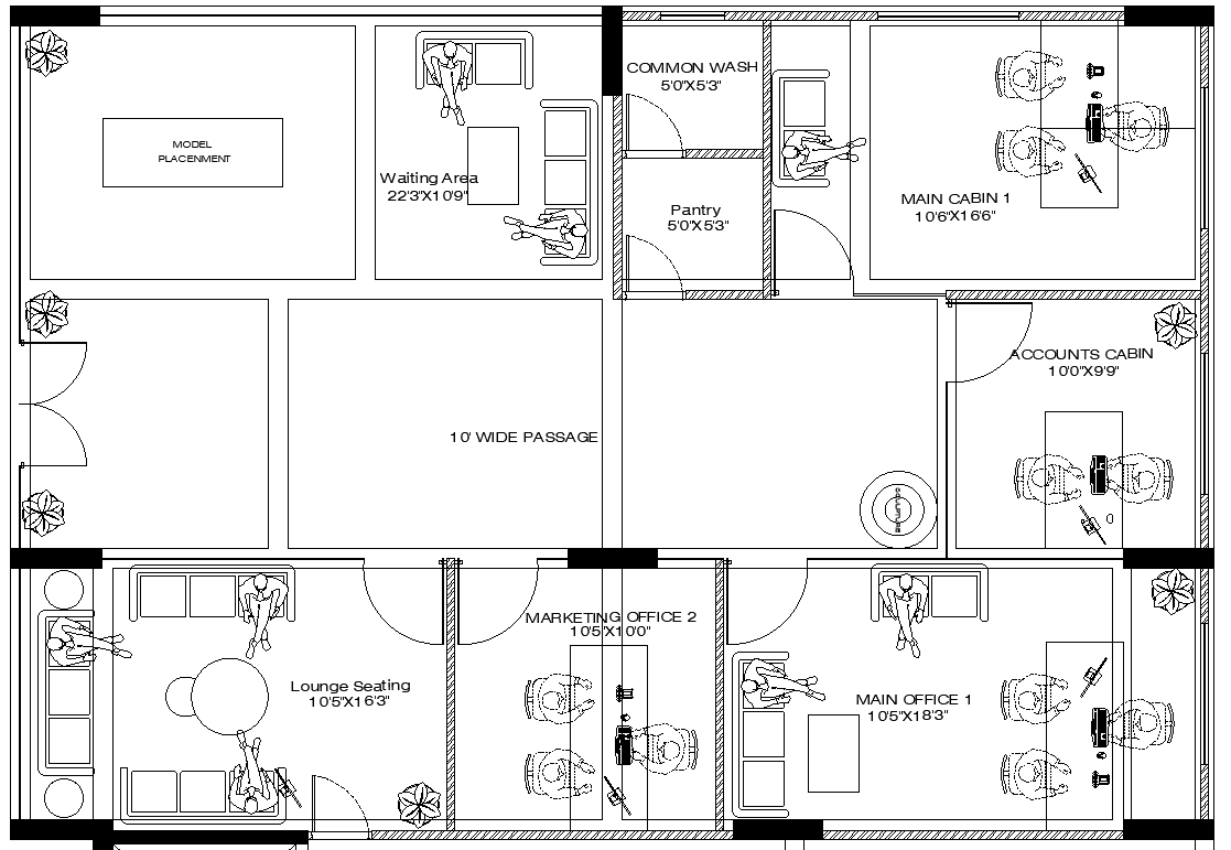
Discover the ultimate corporate office design with our Evercrest DWG AutoCAD drawing. This meticulously detailed CAD file provides comprehensive elevation details for your building's design, capturing every aspect of the side view with precision. Perfect for architects and designers, our 2D drawing ensures accuracy and ease of customization to fit your project needs.The Evercrest corporate office design emphasizes functionality and modern aesthetics, making it ideal for professional environments. Our AutoCAD files offer detailed insights into the office layout, supporting seamless integration into your workflow. Enhance your project with high-quality CAD drawings that deliver both form and function.Whether you're planning a new office building or renovating an existing one, our Evercrest design is the perfect solution. Unlock the potential of your corporate space with our expertly crafted drawings, designed to inspire and streamline your architectural process. Elevate your office design projects with our detailed and versatile AutoCAD files.

Uploaded by:
Liam
White

