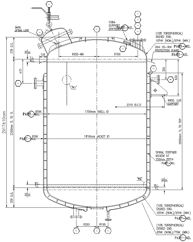
Lifting lugs and dished end details with jacket id and shell id dwg autocad drawing
Description
Our AutoCAD drawing provides comprehensive details on lifting lugs and dished end configurations, complete with specifications for jacket ID and shell ID. With precise measurements and annotations, this DWG file offers valuable insights for engineers, designers, and drafters working on pressure vessel projects.From the design of lifting lugs to the intricacies of dished end construction, our drawing covers all aspects necessary for successful implementation. Whether you're involved in manufacturing, construction, or engineering, our detailed CAD file serves as a reliable resource for enhancing your project plans and ensuring compliance with industry standards.Download our DWG file today to access detailed information on lifting lugs, dished ends, and jacket and shell IDs, and streamline your design process with confidence and accuracy.

Uploaded by:
Liam
White

