Sectional elevation detail of tube sheet DWG AutoCAD drawing
Description
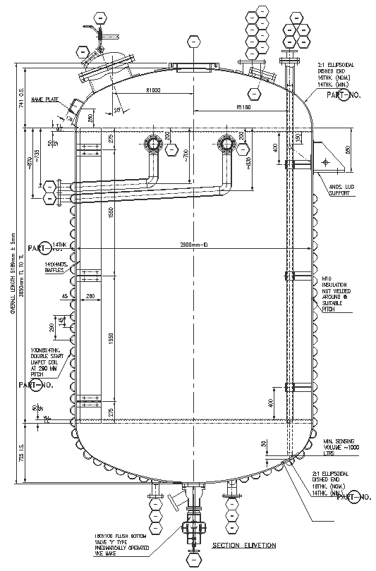
Explore detailed sectional elevation drawings showcasing tube sheet configurations in our collection of AutoCAD DWG files. These CAD drawings provide a comprehensive view of tube sheet designs, offering valuable insights into their structural integrity and specifications. Each 2D drawing is meticulously crafted to ensure clarity and precision in your engineering projects. Whether you're a seasoned professional or new to CAD drafting, our DWG files are invaluable resources for conceptualization and implementation. Dive into the intricate details of tube sheet assemblies, optimized for seamless integration into your designs. Elevate your drafting process with our industry-standard AutoCAD files, meticulously designed to meet your project requirements. Unlock the potential of your projects with our CAD files, empowering you to bring your visions to life with confidence and efficiency. Explore our collection today and revolutionize your design workflow with our comprehensive sectional elevation details.

Uploaded by:
Fernando
Zapata

