Internal coil nozzle and Thermowell section detail DWG AutoCAD drawing
Description
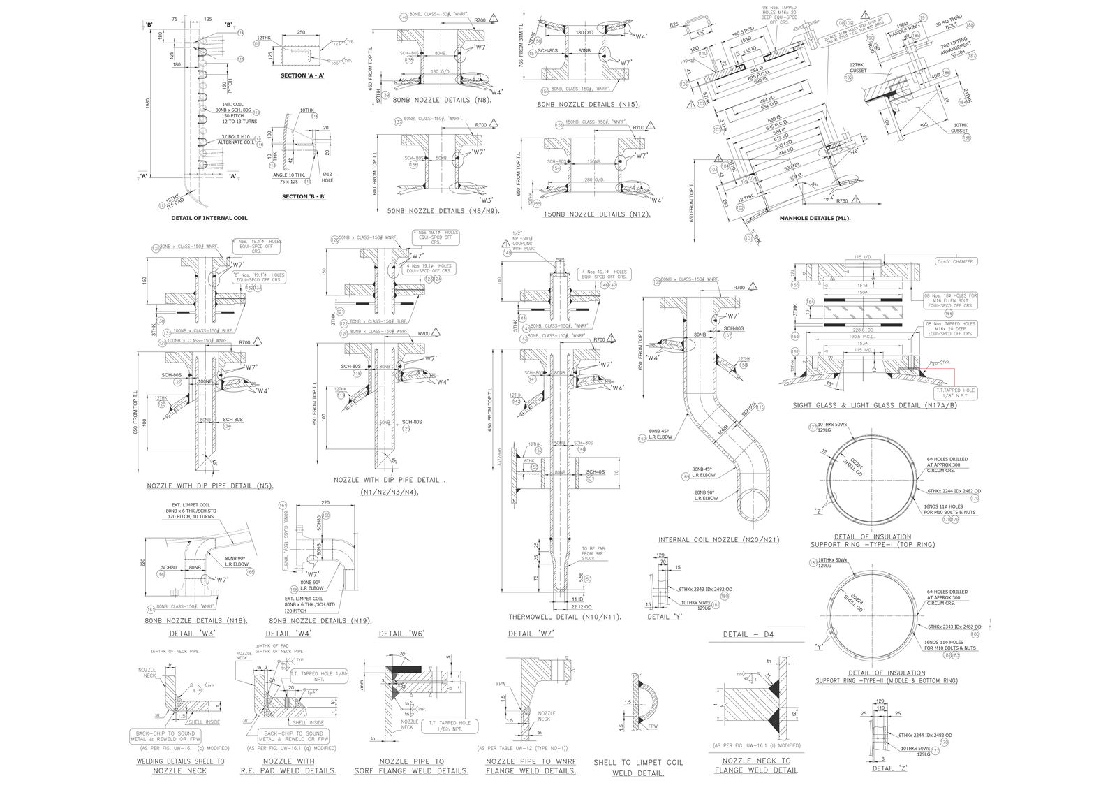
Explore detailed internal coil nozzle and thermowell section details in our collection of AutoCAD DWG files. Our CAD drawings offer comprehensive insights into the design and specifications of these essential components. Each 2D drawing is meticulously crafted to ensure clarity and precision in your engineering projects. Whether you're a seasoned professional or new to CAD drafting, our DWG files are invaluable resources for conceptualization and implementation. Dive into the intricate details of internal coil nozzles and thermowells, optimized for seamless integration into your designs. Elevate your drafting process with our industry-standard AutoCAD files, meticulously designed to meet your project requirements. Unlock the potential of your projects with our CAD files, empowering you to bring your visions to life with confidence and efficiency. Explore our collection today and revolutionize your design workflow with our comprehensive internal coil nozzle and thermowell section details.

Uploaded by:
Fernando
Zapata

