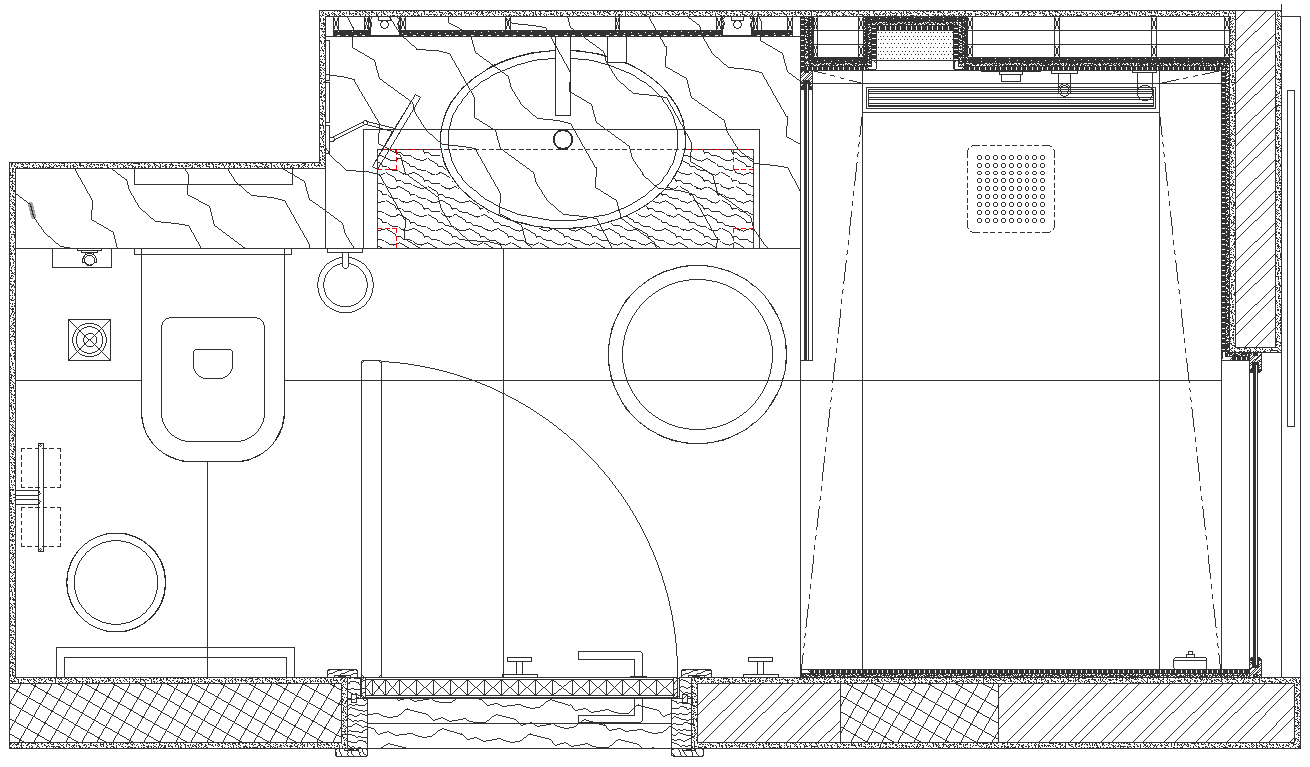
Bathroom design detailed plan with all sanitary units DWG AutoCAD drawing
Description
Immerse yourself in the world of luxurious bathroom design with our meticulously detailed DWG AutoCAD drawings, presenting a comprehensive plan complete with all sanitary units. Our CAD files offer precise 2D drawings, meticulously outlining the layout and placement of every essential element in your bathroom design. Delve into the specifics of our AutoCAD files, providing comprehensive measurements and specifications for seamless integration into your architectural plans. Whether you're renovating a residential bathroom or designing a commercial restroom, our DWG drawings cater to your project's needs. Elevate your construction process with our curated selection of CAD drawings, allowing you to visualize and execute every detail with precision and ease. From selecting the right materials to understanding the installation process, our DWG files provide the blueprint for creating a functional and aesthetically pleasing bathroom design. Explore our AutoCAD files today and embark on a journey to redefine luxury and comfort in your bathroom space.
File Type:
DWG
File Size:
12.7 MB
Category::
Architecture
Sub Category::
Bathroom & Toilet Drawing
type:
Gold

Uploaded by:
Fernando
Zapata

