Toughened glass sliding window section detail DWG AutoCAD drawing
Description
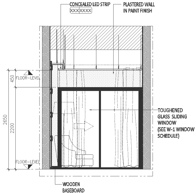
Unlock the essence of seamless design and functionality with our meticulously detailed DWG AutoCAD drawings, presenting the section detail of toughened glass sliding windows. Our CAD files offer precise 2D drawings, meticulously outlining the construction and dimensions of toughened glass sliding windows, ensuring optimal performance and aesthetic appeal. Delve into the specifics of our AutoCAD files, providing comprehensive measurements and specifications for seamless integration into your architectural plans. Whether you're renovating a residential space or designing a commercial building, our DWG drawings cater to your project's requirements. Elevate your construction process with our curated selection of CAD drawings, allowing you to visualize and execute every detail with precision and ease. From selecting the right materials to understanding the installation process, our DWG files provide the blueprint for creating functional and aesthetically pleasing sliding windows. Explore our AutoCAD files today and elevate your architectural designs with confidence and finesse.

Uploaded by:
Fernando
Zapata

