Material detail for decorative wall DWG AutoCAD drawing
Description
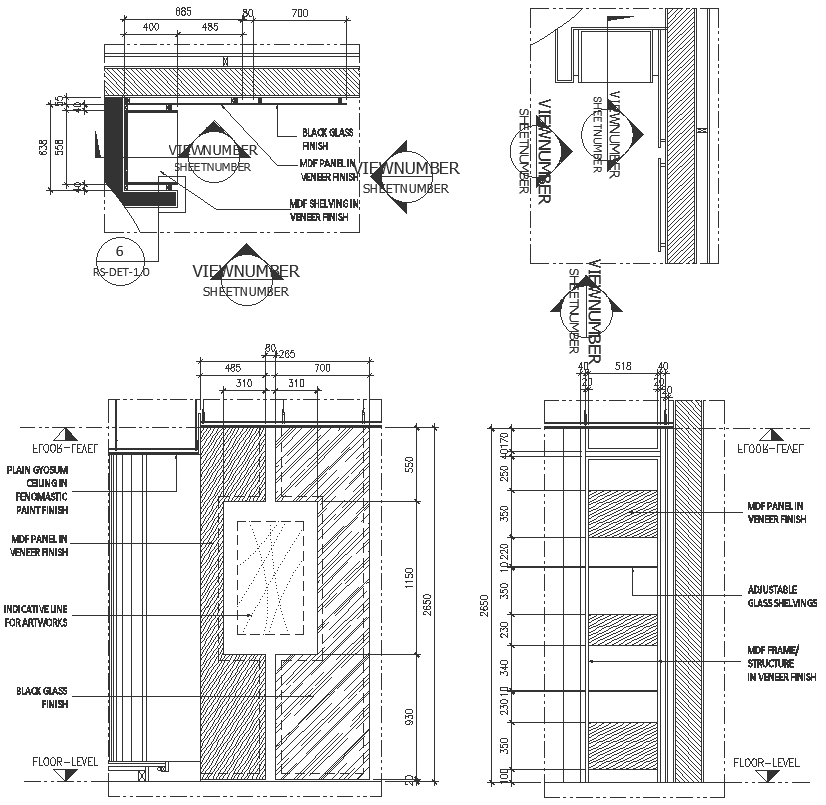
Explore the intricacies of decorative wall design with our detailed DWG AutoCAD drawings, featuring comprehensive material details. Our CAD files offer precise 2D drawings, meticulously outlining the materials required to create stunning decorative walls, adding visual interest to any space. Delve into the specifics of our AutoCAD files, providing comprehensive measurements and specifications for seamless integration into your architectural plans. Whether you're enhancing the interior of a residential home or adding flair to a commercial building, our DWG drawings cater to your project's unique requirements. Elevate your design process with our curated selection of CAD drawings, allowing you to visualize and execute every detail with precision and ease. From selecting the right materials to understanding the installation process, our DWG files provide the blueprint for creating captivating decorative walls that leave a lasting impression. Explore our AutoCAD files today and transform your space with style and sophistication.

Uploaded by:
Fernando
Zapata

