Working drawings of bar or club DWG AutoCAD drawing
Description
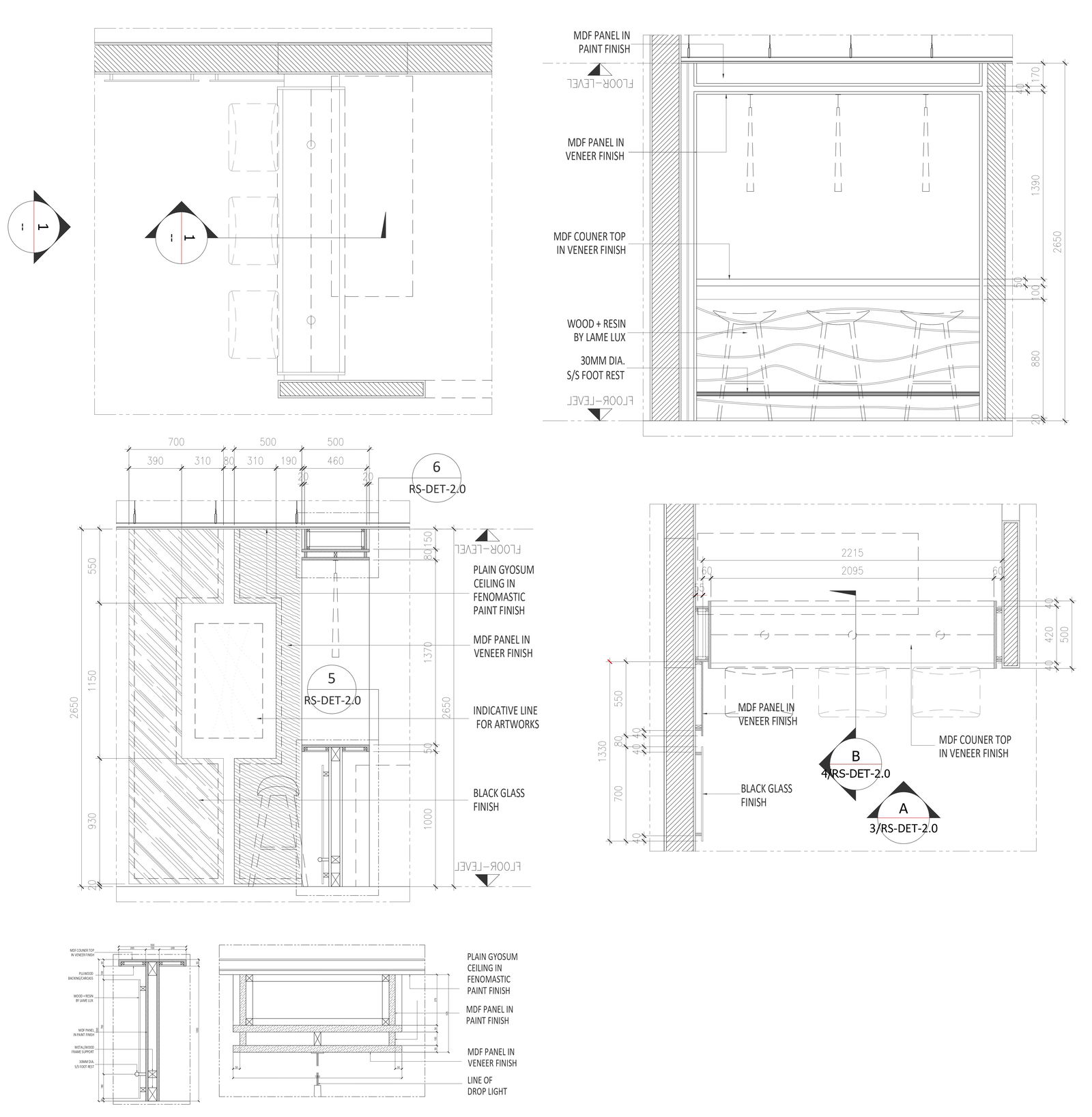
Immerse yourself in the meticulous details of bar or club design with our comprehensive DWG AutoCAD drawing, showcasing working drawings that bring your vision to life. Our CAD file provides precise 2D drawings, meticulously outlining the layout and specifications of the bar or club, ensuring seamless integration into your architectural plans. Delve into the specifics of our AutoCAD file, offering comprehensive measurements and detailed views for effortless implementation. Whether you're designing a trendy nightclub or a cozy neighborhood bar, our DWG drawing caters to your project's unique requirements. Elevate your design process with our curated selection of CAD drawings, allowing you to visualize and execute every detail with precision and ease. From optimizing space utilization to ensuring regulatory compliance, our DWG file provides the blueprint for creating a vibrant and inviting bar or club atmosphere. Explore our AutoCAD files today and elevate your hospitality space with our detailed working drawings.

Uploaded by:
Fernando
Zapata

