DWG format with 2BHK house and SBM wall plan layout
Description
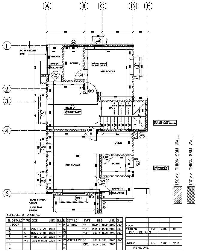
Explore the spacious elegance of our meticulously crafted DWG AutoCAD drawing, featuring a detailed floor plan of a two BHK house with SBM (Structural Brick Masonry) wall detail. This CAD file provides precise 2D drawings, meticulously outlining the layout and design of the house, including the specifications of the SBM wall construction. Delve into the specifics of our AutoCAD file, offering comprehensive measurements and detailed views for effortless integration into your architectural plans. Whether you're designing a modern family home or a cozy retreat, our DWG drawing caters to your project's unique requirements. Elevate your design process with our curated selection of CAD drawings, allowing you to visualize and execute every detail with precision and ease. From optimizing space utilization to ensuring structural stability, our DWG file provides the blueprint for creating a comfortable and functional two BHK house. Explore our AutoCAD files today and transform your architectural visions into reality.

Uploaded by:
Fernando
Zapata

