Chamber section detail DWG AutoCAD drawing
Description
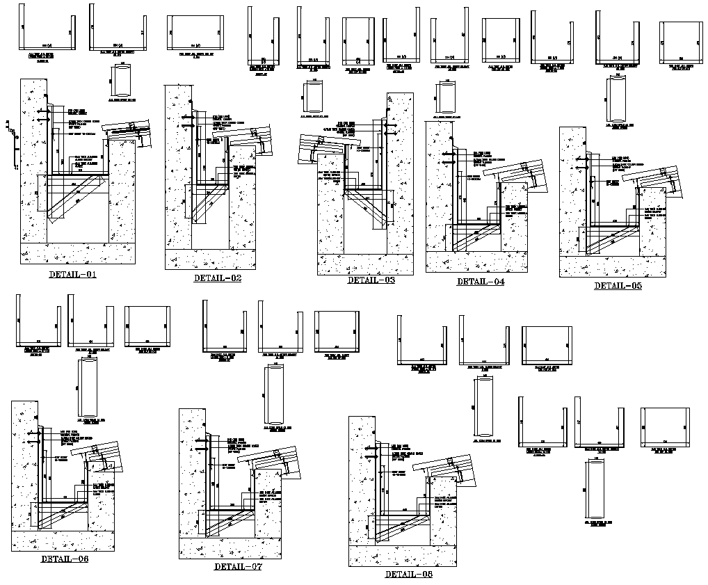
Delve into the intricacies of chamber design with our detailed DWG AutoCAD drawing showcasing a comprehensive section detail. This CAD file offers precise 2D drawings, meticulously outlining the specifications and dimensions of the chamber, ensuring seamless integration into your architectural or engineering plans. Dive into the specifics of our AutoCAD file, providing comprehensive measurements and detailed views for effortless implementation. Whether you're designing chambers for industrial processes, testing facilities, or scientific research, our DWG drawing caters to your project's unique requirements for efficient and functional chamber designs. Elevate your design process with our curated selection of CAD drawings, allowing you to visualize and execute every detail with precision and ease. From optimizing workflow to ensuring safety standards, our DWG file provides the blueprint for incorporating chamber sections effectively into your designs. Explore our AutoCAD files today and enhance your projects with our expertly detailed drawings.

Uploaded by:
Fernando
Zapata

