Modern Kitchen Cabinet Section DWG with Dimensions and Specifications
Description
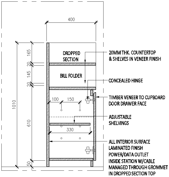
This AutoCAD DWG file presents a detailed 2D drawing of a modern kitchen cabinet section, meticulously crafted to showcase contemporary design elements. The drawing includes precise dimensions, material specifications, and construction details, making it an invaluable resource for architects, interior designers, and kitchen planners. Whether you're designing a sleek urban kitchen or a stylish suburban home, this DWG drawing caters to your project's unique requirements for modern cabinetry. Enhance your design process with this expertly detailed drawing, allowing you to visualize and execute every detail with precision and ease. From optimizing storage solutions to achieving a minimalist aesthetic, this DWG file provides the blueprint for incorporating sophisticated kitchen cabinets into your designs.

Uploaded by:
Fernando
Zapata

