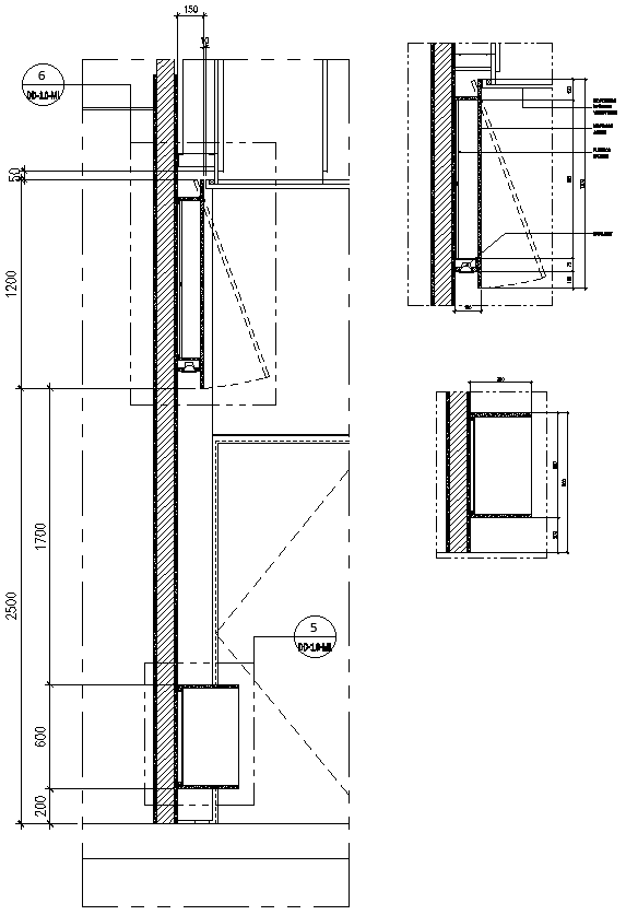
Wall cut out section detail with dressing table and drawers DWG AutoCAD drawing
Description
Explore the intricacies of interior design with our detailed DWG AutoCAD drawing, featuring a wall cut-out section detail with a dressing table and drawers. This CAD file provides precise 2D drawings, meticulously showcasing the layout and specifications of the wall cut-out, dressing table, and drawers, ensuring seamless integration into your architectural or interior design plans. Delve into the specifics of our AutoCAD file, offering comprehensive measurements and detailed views for effortless implementation. Whether you're designing bedrooms, dressing rooms, or walk-in closets, our DWG drawing caters to your project's unique requirements for functional and stylish storage solutions. Elevate your design process with our curated selection of CAD drawings, allowing you to visualize and execute every detail with precision and ease. From optimizing space utilization to enhancing aesthetic appeal, our DWG file provides the blueprint for creating a well-appointed and organized interior space. Explore our AutoCAD files today and transform your designs with our expertly detailed drawings.
File Type:
DWG
File Size:
4.3 MB
Category::
Structure
Sub Category::
Section Plan CAD Blocks & DWG Drawing Models
type:
Gold

Uploaded by:
Fernando
Zapata

