Toilet detailed Section with tile and interior detail DWG AutoCAD file
Description
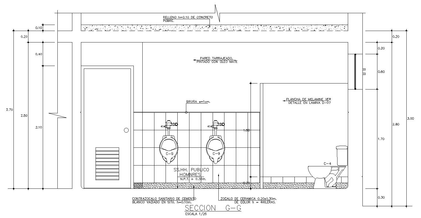
Explore a comprehensive AutoCAD DWG file detailing the intricate sections of a toilet, complete with tile arrangements and interior specifics. This CAD drawing provides a meticulous breakdown, suitable for architects, interior designers, and construction professionals seeking precise 2D drawings. The DWG file showcases detailed tile patterns and interior elements, offering a valuable resource for planning and visualization purposes. Whether you're designing a residential bathroom or a commercial restroom, this CAD file enhances project accuracy and efficiency. Download the DWG file to access precise measurements, layout configurations, and material specifications, crucial for seamless implementation in your architectural projects. Dive into the nuances of toilet design with this invaluable AutoCAD resource, ideal for integrating functional and aesthetic considerations into your construction and renovation plans effortlessly.

Uploaded by:
Eiz
Luna

