Bingkai jendela aluminum frame details dwg autocad drawing .
Description
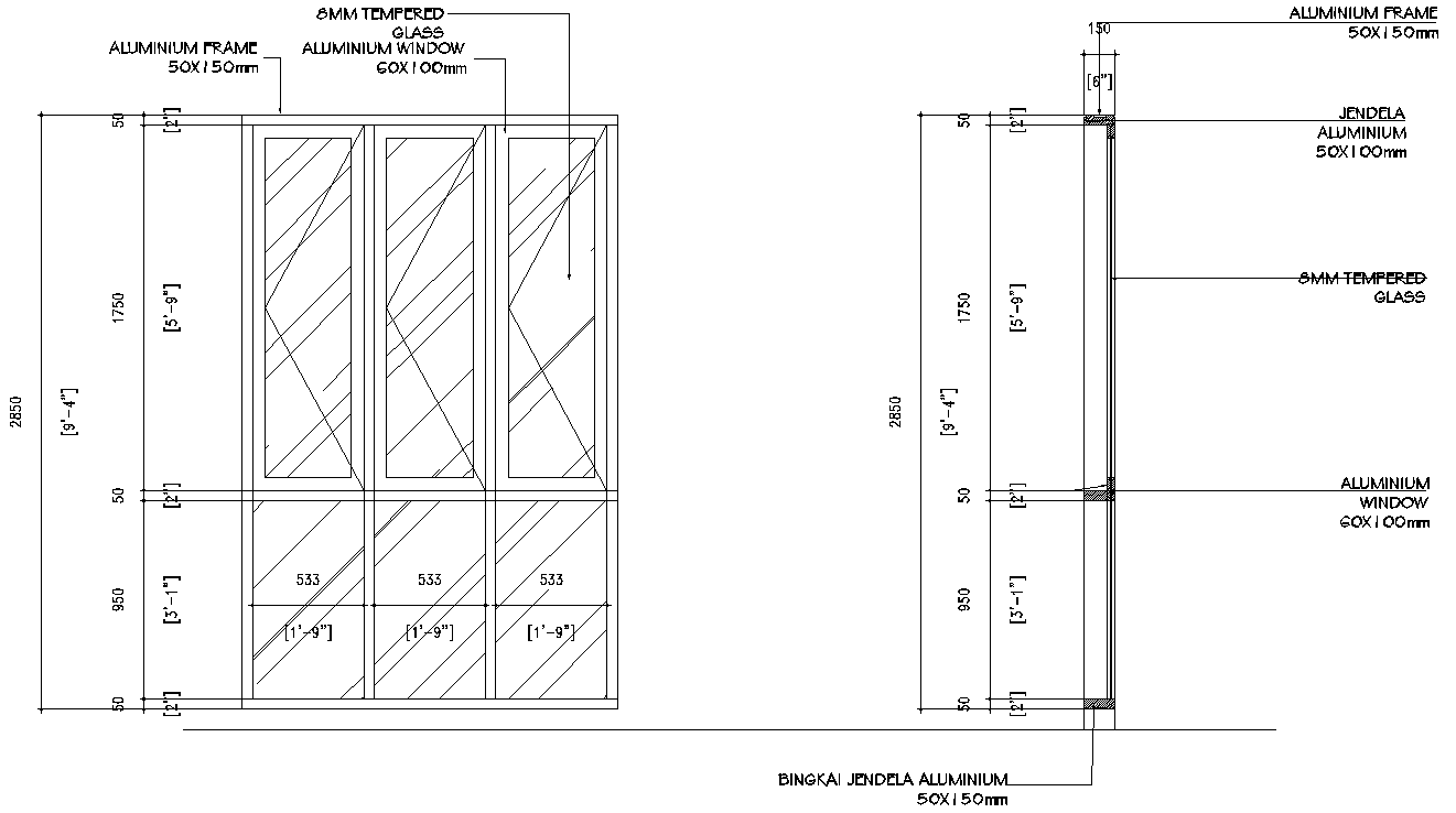
This AutoCAD DWG drawing provides detailed specifications for aluminum window frame construction, essential for architects, engineers, and designers. It offers comprehensive information on dimensions, materials, and assembly methods, facilitating accurate fabrication and installation. Professionals can rely on this drawing to ensure precise integration of aluminum window frames into various architectural projects, enhancing both functionality and aesthetic appeal. Downloading this DWG file supports efficient planning and implementation, guiding the construction of robust and modern window frames. Optimize your design and construction processes with this essential resource, ensuring high-quality aluminum frame details tailored to residential, commercial, or industrial applications.

Uploaded by:
Liam
White

