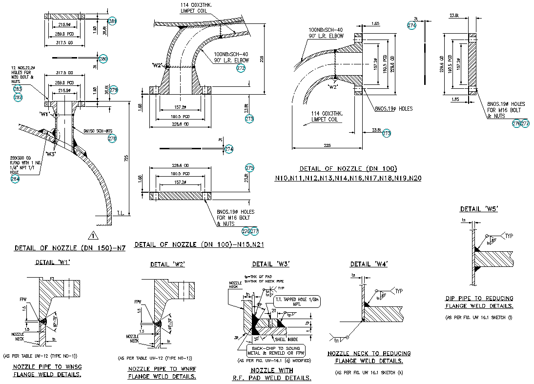
Nozzle with reference pad welding details dwg autocad drawing .
Description
Discover our detailed DWG AutoCAD drawing featuring the nozzle with reference pad welding details. This comprehensive design is perfect for engineers, welders, and designers involved in precision fabrication and construction projects. Our drawing provides meticulous details and dimensions, ensuring accurate implementation of nozzle and pad welding techniques. Download our AutoCAD file to enhance your project planning, ensuring every aspect of the welding process is precisely executed. This CAD drawing is essential for achieving high-quality, reliable welds, supporting various industrial applications. Integrate our detailed design into your workflow to streamline operations and improve structural integrity. Elevate your project with our expertly crafted AutoCAD drawing, guiding you through every step of the nozzle and pad welding process for superior results.
File Type:
DWG
File Size:
1.2 MB
Category::
Mechanical and Machinery
Sub Category::
Factory Machinery
type:
Gold

Uploaded by:
Liam
White

