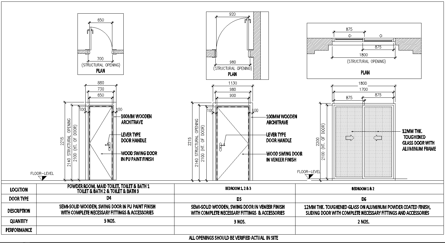
Powder room , Maid room and toilet design dwg autocad drawing .
Description
Discover our detailed AutoCAD drawing (DWG file) showcasing the design specifications for a powder room, maid room, and toilet. This resource is indispensable for architects, interior designers, and contractors looking to optimize space utilization and functionality in residential or commercial settings. Our drawing includes comprehensive 2D layouts and elevations, providing clear insights into spatial arrangements, fixture placements, and dimensions. Whether you're planning a renovation, new construction, or interior remodeling project, our CAD file offers versatile solutions tailored to meet diverse design requirements. Download this resource to streamline your design process and ensure precise implementation of powder rooms, maid rooms, and toilets in your architectural projects. Enhance your project efficiency and achieve superior design outcomes with our meticulously crafted AutoCAD drawing, designed to facilitate seamless integration and aesthetic harmony in interior spaces. Simplify your design journey with our reliable resources for precise room detailing and optimized spatial planning.
File Type:
DWG
File Size:
5.3 MB
Category::
Interior Design
Sub Category::
Architectural Bathrooms And Interiors
type:
Free

Uploaded by:
Liam
White

