Concealed LED strip CAD details for architects and interior designers
Description
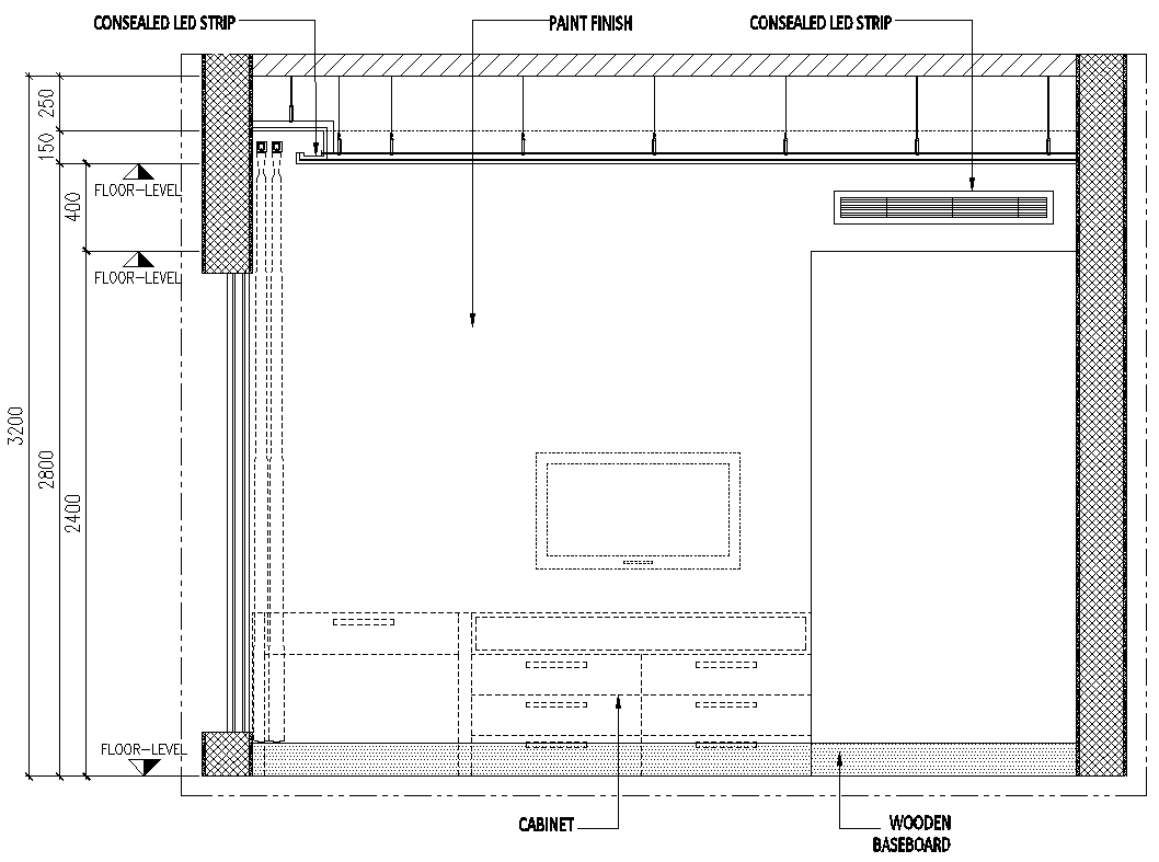
Detailed layouts of concealed LED strip installations. Perfect for architects, interior designers, and lighting engineers, the CAD drawing helps plan precise placement, dimensions, and alignment of LED strips in residential or commercial interiors. It ensures professional illumination design, enhances aesthetic appeal, and simplifies electrical planning.

Uploaded by:
Liam
White

